Modern waterside two-bedroom with balcony, long lease and underfloor heating.
Open-plan reception with floor-to-ceiling window and balcony views
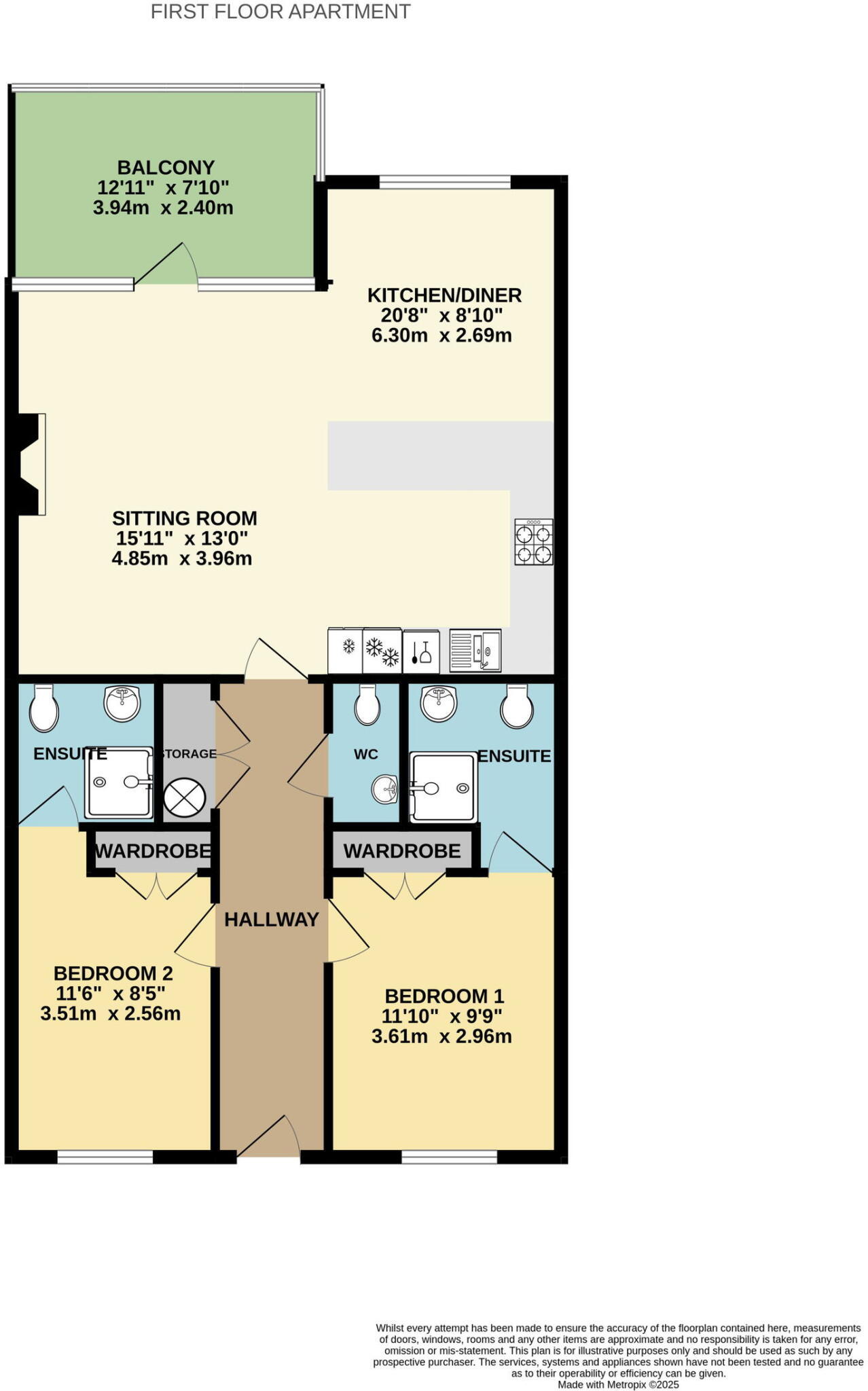
Light-filled, modern two-bedroom apartment set on the first floor of a contemporary waterfront block at Mayflower Marina. The open-plan reception and floor-to-ceiling glazing lead to a generous balcony that takes in direct views over Stonehouse Creek — ideal for relaxed evenings or entertaining. Both bedrooms have ensuite wet rooms; the layout suits sharers, small families or buyers seeking a lock-up-and-leave waterside home.
Practical comforts include underfloor heating throughout, a well-equipped fitted kitchen with integrated appliances, video entry system, and lift access from a secure foyer. The property is presented in neutral, well-maintained condition and measures about 603 sq ft — compact but efficiently arranged. Long lease (around 970 years) and a modest annual service charge of approximately £1,800 are positives for future resale and mortgageability.
Notable considerations: the location has a high flood risk and above-average local crime statistics, and broadband speeds in the area are reported as very slow. Parking is available from the Marina for an additional annual fee and is not automatically included. The building was constructed in the early 1990s/2000s era and benefits from communal management, but prospective buyers should verify service charge details and flood cover with their solicitor and insurer.
This is a waterside apartment that balances low-maintenance modern living with clear practical caveats — attractive for buyers prioritising location and finish, but important to investigate insurance, parking costs and connectivity before proceeding.
2 bedroom apartment for sale in Ocean Court, Plymouth, Devon, PL1 — £275,000 • 2 bed • 1 bath • 556 ft²
2 bedroom apartment for sale in Flagstaff Walk, Mount Wise, PL1 — £299,950 • 2 bed • 2 bath • 850 ft²
2 bedroom flat for sale in Custom House Lane, West Hoe, Plymouth, PL1 — £275,000 • 2 bed • 2 bath • 945 ft²
2 bedroom flat for sale in Maritime Square, Mount Wise, Plymouth, PL1 — £400,000 • 2 bed • 1 bath • 923 ft²
2 bedroom apartment for sale in Maritime Square, Plymouth, Devon, PL1 — £500,000 • 2 bed • 1 bath • 1313 ft²
2 bedroom apartment for sale in Brittany Street, Millbay, Plymouth, PL1 — £230,000 • 2 bed • 2 bath • 751 ft²






















































