Renovation opportunity near Aylestone Meadows and local amenities for hands‑on buyers.
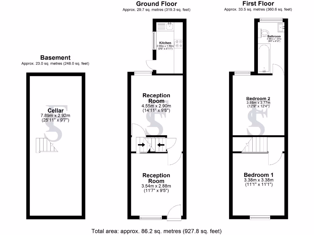
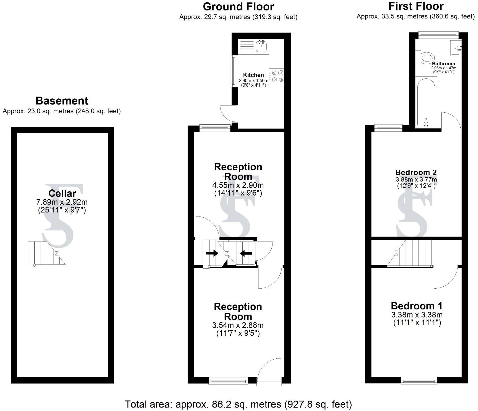
- Victorian mid-terrace with cellar and original proportions
- Two reception rooms and two double bedrooms
- Requires full modernisation throughout
- Solid brick walls; likely no cavity insulation
- Bathroom accessed off principal bedroom (semi‑ensuite)
- Small, low-maintenance garden; on-street parking only
- High local crime rate and area deprivation
- Freehold; low council tax band A
A traditional Victorian mid-terrace with generous room sizes and a cellar, offered as a full modernisation project. The house retains period proportions and practical layout: two reception rooms, a galley kitchen and two double bedrooms upstairs. The principal bedroom has direct bathroom access, creating a semi‑ensuite arrangement. Double glazing and mains gas central heating are already in place.
This property is best for a buyer comfortable with renovation — there is clear scope to reconfigure and modernise to add value. The house sits close to Aylestone Meadows, local shops and good schools, making it suitable for first-time buyers or investors seeking rental demand. On-street parking and a small, low-maintenance garden provide useful outdoor space.
Buyers should note material drawbacks: the home requires full modernisation throughout, the solid-brick walls likely lack insulation, and rooms are relatively small by modern standards. The area’s recorded crime level is high and the neighbourhood is classified as deprived, which may affect resale timing and rental yields. Council tax and broadband are favourable, and there is no flood risk.
With a purchase price reflecting its condition, this freehold terrace offers upside for those prepared to invest time and budget. Clear renovation plans, attention to insulation and security, and considered interior remodelling could transform the house into a comfortable family home or a let-ready investment.
2 bedroom terraced house for sale in Milligan Road, Aylestone, LE2 — £195,000 • 2 bed • 1 bath • 1182 ft²
2 bedroom terraced house for sale in Hawkesbury Road, Leicester, Leicestershire, LE2 — £150,000 • 2 bed • 2 bath • 888 ft²
4 bedroom terraced house for sale in Lansdowne Road, Aylestone, Leicester, LE2 — £315,000 • 4 bed • 1 bath • 1830 ft²
2 bedroom terraced house for sale in Vicarage Lane, Leicester, Leicestershire, LE4 — £220,000 • 2 bed • 1 bath
2 bedroom terraced house for sale in Kensington Street, Leicester, LE4 — £210,000 • 2 bed • 1 bath • 604 ft²
2 bedroom terraced house for sale in Dartford Road, Leicester, Leicestershire, LE2 — £170,000 • 2 bed • 1 bath • 900 ft²






































