**Standout Features:**
- Three-storey Victorian mid-terrace property
- Four double bedrooms, snug/study
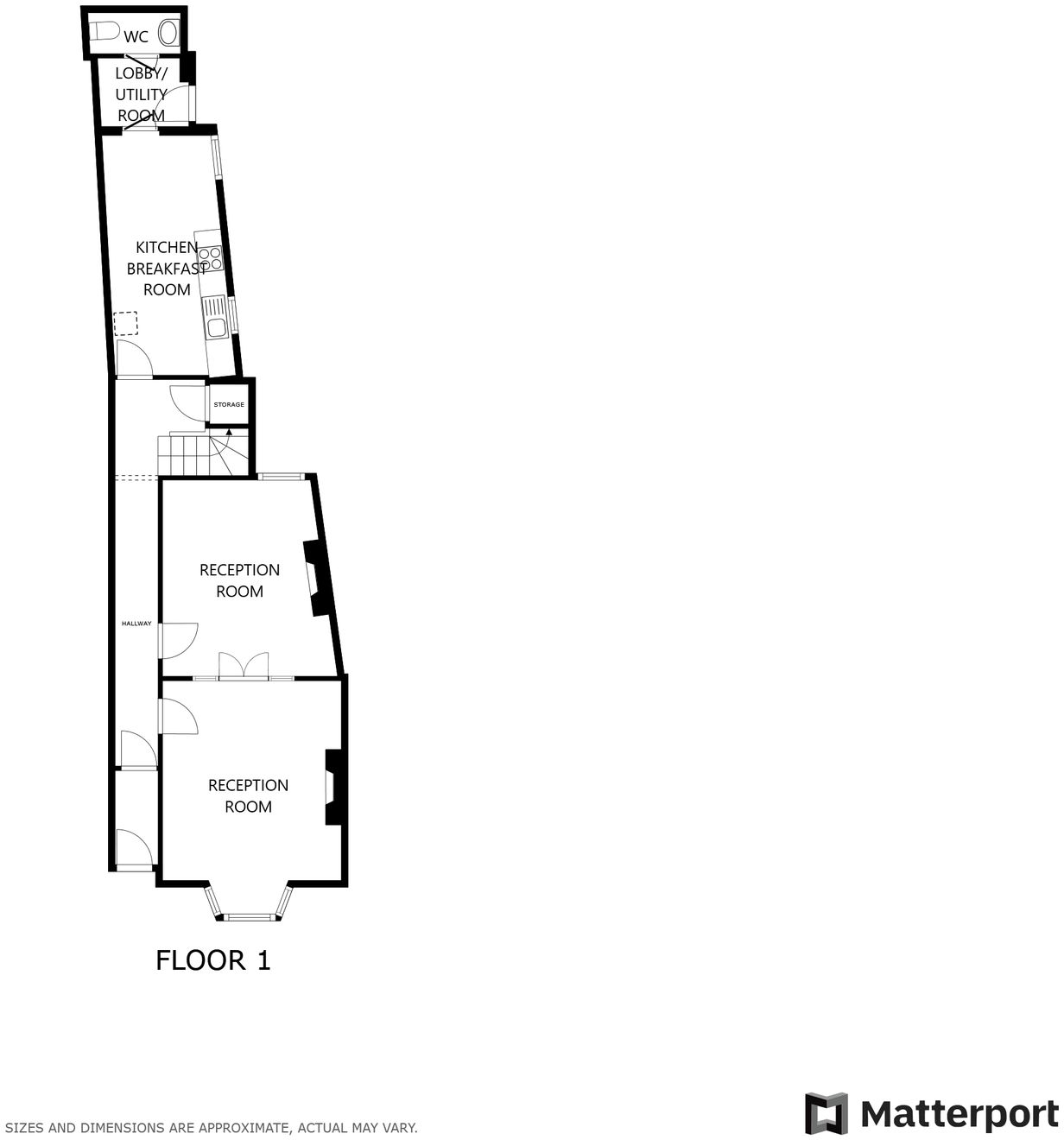
- Two spacious reception rooms with period features
- Kitchen breakfast room with built-in appliances
- Rear courtyard garden and off-road parking
- Convenient location near amenities and schools
**Potential Concerns:**
- Needs modernization
- Some structural upkeep may be necessary
- Solid brick walls without insulation (assumed)
Discover your new home in this spacious and character-rich four-bedroom Victorian mid-terrace property, perfect for families or investors. The impressive layout spans three floors, featuring two large reception rooms adorned with period details like high ceilings and bay windows, creating an inviting atmosphere. The well-appointed kitchen boasts modern conveniences, while the snug/study area offers versatility for work or play.
Step outside to enjoy a lovely courtyard garden—an ideal spot for relaxation or entertaining, paired with the convenience of off-road parking. Nestled in a vibrant neighborhood, you’ll find quality schools and local amenities just a stone's throw away, including sports facilities and retail options. Though the property requires some modernization and maintenance, it offers ample opportunity to add your personal touch and increase future value. Don’t miss the chance to make this charming residence your own—schedule a viewing today!
3 bedroom terraced house for sale in Cavendish Road, Leicester, Leicestershire, LE2 — £200,000 • 3 bed • 1 bath • 721 ft²
4 bedroom terraced house for sale in Aylestone Road, Aylestone, Leicester, LE2 — £380,000 • 4 bed • 4 bath • 1884 ft²
3 bedroom terraced house for sale in Vernon Road, Aylestone, LE2 — £169,950 • 3 bed • 1 bath • 791 ft²
2 bedroom terraced house for sale in Tyrrell Street, Leicester, LE3 — £190,000 • 2 bed • 1 bath
4 bedroom end of terrace house for sale in Joyce Road, Off Groby Road, Leicester, LE3 — £325,000 • 4 bed • 2 bath • 1281 ft²
4 bedroom terraced house for sale in Lansdowne Road, Aylestone, LE2 — £315,000 • 4 bed • 1 bath • 1820 ft²


































































