Modern two-bedroom city centre apartment with parking and utility room.
Sunny sea-facing balcony with elevated coastal views
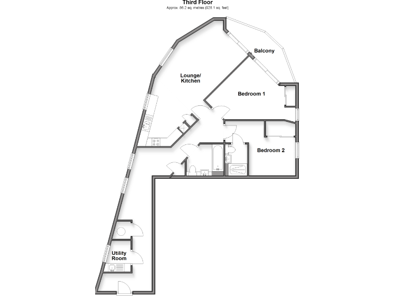
Set on a higher floor in a modern West Street development, this two-bedroom flat offers bright open-plan living with a sunny sea-facing balcony. The layout includes a separate utility room and two bathrooms, making it practical for couples, sharers or those who like to host. An allocated underground parking space and communal gardens add useful city-centre conveniences.
The apartment is chain free and comes with a long lease (around 100 years remaining) — attractive if you want a straightforward purchase in central Brighton. The spacious living/kitchen area benefits from elevated sea views and plenty of natural light, while the separate utility room helps keep the main living space tidy.
Buyers should note the property uses electric room heaters rather than a central heating system, which can mean higher running costs. The service charge is approximately £3,335 per year and council tax is above average; factor both into your running-costs calculations. The local area is a cosmopolitan mix of students and professionals and is lively, which suits those after a vibrant city lifestyle but may not suit buyers seeking quiet.
The building was constructed in the early 2000s and presents as contemporary and well-maintained. This flat suits first-time buyers looking for a lock-up-and-leave coastal city base, or investors after a central, sea-facing apartment with parking. Verify lease, service charge details and measurements with your solicitor before committing.
2 bedroom flat for sale in West Street, Brighton, East Sussex, BN1 — £330,500 • 2 bed • 2 bath • 883 ft²
2 bedroom flat for sale in West Street, Avalon West Street, BN1 — £425,000 • 2 bed • 1 bath • 785 ft²
2 bedroom apartment for sale in Edward Street Quarter, Brighton, BN2 — £587,500 • 2 bed • 2 bath • 721 ft²
2 bedroom flat for sale in New Steine, Brighton, East Sussex, BN2 — £350,000 • 2 bed • 1 bath • 637 ft²
2 bedroom apartment for sale in Essex Place, Brighton, BN2 — £460,000 • 2 bed • 1 bath • 673 ft²
1 bedroom flat for sale in Sillwood Place, Brighton, BN1 — £250,000 • 1 bed • 1 bath • 738 ft²






















































