Turnkey rental with allocated parking and long lease.
Brand-new two-bedroom, two-bathroom apartment
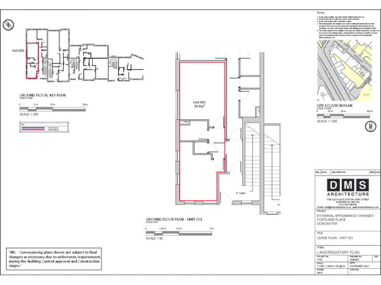
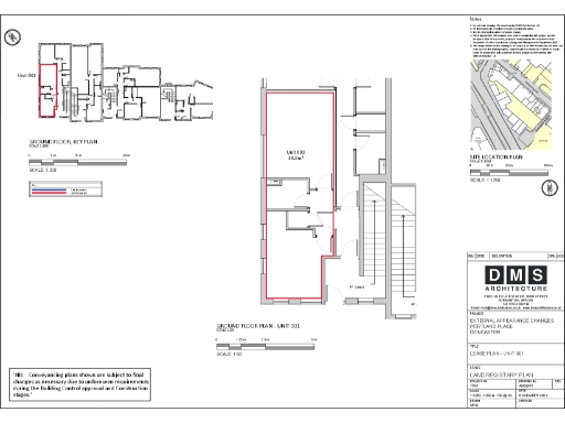
A purpose-built, brand-new two-bedroom apartment designed for strong rental returns and low running costs. The development sits in Doncaster town centre close to the railway station, Waterdale Shopping Centre and local employers, putting amenities and transport on the doorstep. The apartment includes two double bedrooms, two bathrooms, allocated parking, energy-efficient construction and a 10-year warranty for buyer reassurance.
This unit is offered with tenants in situ, making it a ready-made income stream for investors. Leasehold terms are long (about 248 years remaining), there is zero ground rent and the stated service charge is competitive at around £850 per year. Council tax is very cheap, supporting low ongoing costs for occupants.
Buyers should note material local and technical factors: the area is classified as very deprived with a very high crime rate, and broadband speeds are reported as very slow. Tenants in place will limit immediate vacant possession and viewing flexibility. Overall this is a pragmatic investment pick — good yield potential and modern specification, balanced against local socio-economic challenges and connectivity limits.
1 bedroom flat for sale in Portland Place, Doncaster, DN1 — £115,000 • 1 bed • 1 bath • 618 ft²
2 bedroom apartment for sale in Cleveland Street, Town, Doncaster, DN1 — £80,000 • 2 bed • 1 bath • 388 ft²
14 bedroom block of apartments for sale in Cleveland Street, Doncaster, DN1 — £1,550,000 • 14 bed • 11 bath • 2314 ft²
1 bedroom flat for sale in St. Sepulchre Gate, Doncaster, South Yorkshire, DN1 — £60,000 • 1 bed • 1 bath • 454 ft²
2 bedroom flat for sale in York Road, Doncaster, South Yorkshire, DN5 — £95,000 • 2 bed • 1 bath • 659 ft²
2 bedroom flat for sale in St. Sepulchre Gate, Doncaster, South Yorkshire, DN1 — £80,000 • 2 bed • 1 bath • 403 ft²


















































































































































































