Large modern family house with annex and expansive rural views, ready for contemporary living..
- Brand-new detached house over 4,100 sq ft
- Five bedrooms, principal bedroom with ensuite and dressing
- Double garage with studio/annex accessed via internal stairs
- Spectacular kitchen/dining/family room with lantern roof light
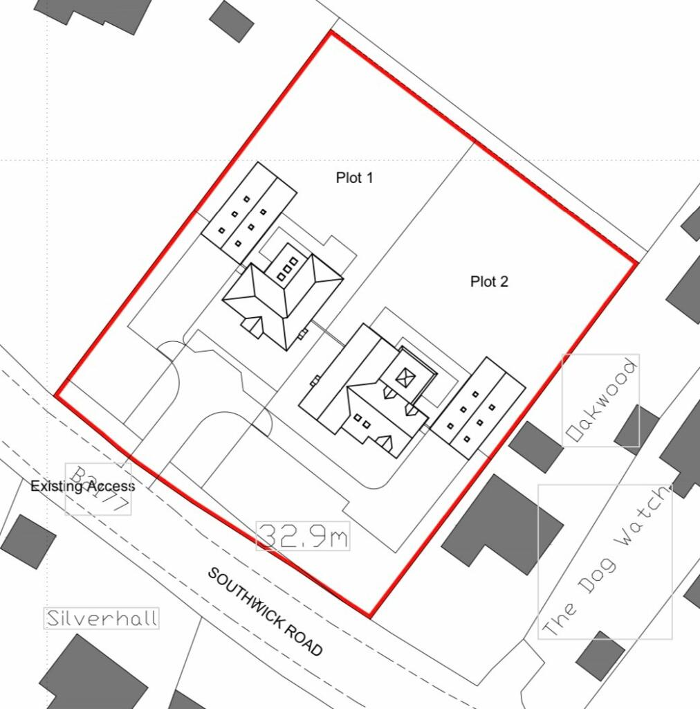
- Gated driveway, huge plot overlooking paddocks
- Separate sitting room, office and large utility
- New-build snagging possible; likely initial maintenance
- Average broadband and mobile signal; rural, relatively isolated location
A brand-new, individual detached house occupying a large plot on the edge of North Boarhunt. The Grey House delivers over 4,100 sq ft of contemporary living with five bedrooms, a large double garage and a studio/annex above the garage — a flexible layout for family life, home working or occasional guests.
The ground floor centres on a spectacular Kitchen/Dining/Family room that runs the width of the rear, with a lantern roof light and concertina doors that open to the garden and paddocks beyond. A separate formal sitting room with a log burner, a dedicated study and a utility room add practical daily comfort. Upstairs the principal suite benefits from a dressing area and ensuite, with a second ensuite to bedroom two and a family bathroom for remaining bedrooms.
Practical positives include a gated approach, plentiful parking, freehold tenure and no flooding risk. This is a rural location with scenic countryside views and close access to the South Downs and the Solent. Buyers should note typical new-build considerations: snagging may be required, broadband and mobile signal are average, and the property is set in an isolated/hamlet setting which may suit those prioritising privacy over immediate local amenities.
4 bedroom detached house for sale in Southwick Road, North Boarhunt, Fareham, PO17 — £1,300,000 • 4 bed • 3 bath • 3130 ft²
3 bedroom detached house for sale in Bourne View, Trampers Lane, North Boarhunt, PO17 — £1,050,000 • 3 bed • 3 bath • 2339 ft²
5 bedroom detached house for sale in Trampers Lane, North Boarhunt, Fareham, PO17 — £1,250,000 • 5 bed • 3 bath • 3500 ft²
5 bedroom detached house for sale in North Boarhunt, North Boarhunt, Fareham, PO17 — £1,600,000 • 5 bed • 3 bath • 4000 ft²
4 bedroom detached house for sale in North Boarhunt, North Boarhunt, Fareham, PO17 — £1,300,000 • 4 bed • 3 bath • 3500 ft²
3 bedroom detached house for sale in Sky View, Trampers Lane, North Boarhunt, PO17 — £995,000 • 3 bed • 3 bath • 2339 ft²






























































































































































































































