Large leasehold restaurant with fixtures included, ready for immediate operation.
Established Peking & Cantonese restaurant trading successfully
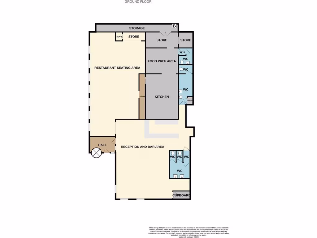
A rare opportunity to buy a long-established Chinese restaurant and leasehold premises in a prominent end-of-Lord-Street position. The sale includes all fixtures and fittings, with a large commercial kitchen and generous dining areas across approximately 2,908 sqft, ready for continued trading or an operator-led rebrand.Off-street parking and excellent mobile and broadband connectivity support a busy trading environment; the property sits within a mixed-use building with residential flats above, helping maintain footfall and passing trade. The layout is practical for hospitality with separate front and rear seating, bar area, storage and staff facilities.The lease has about 34 years remaining. This is a material issue: many mortgage lenders will refuse lending on a short lease, so purchasers should plan purchase funding carefully (cash buyers or specialist commercial lenders). The surrounding area shows higher crime rates and significant deprivation, which can affect staffing, security costs and evening trade; factor these into running projections.Overall the premises suit an experienced operator or investor seeking an immediate, turnkey hospitality business — or a buyer prepared to explore alternative commercial uses subject to lease terms and planning consent.
Commercial property for sale in 199-201 Lord Street, Southport, Merseyside, PR8 — £325,000 • 1 bed • 1 bath • 2430 ft²
Restaurant for sale in Ashley Road, Southport, Merseyside, PR9 0RB, PR9 — £80,000 • 1 bed • 1 bath
Commercial property for sale in Two Licenced Bar/Deli - Merseyside [PR8 5DH], PR8 — £499,950 • 1 bed • 1 bath
Cafe for sale in Cafe & Sandwich Bars, Merseyside, PR8 — £59,950 • 1 bed • 1 bath • 1066 ft²
High street retail property for sale in 6 Wesley Street, Southport, Merseyside, PR8 — £59,950 • 1 bed • 1 bath • 405 ft²
Restaurant for sale in 10 Union Street, Southport, Merseyside, PR9 — £175,000 • 1 bed • 1 bath • 382 ft²






































