Spacious three-bedroom home on a large private plot with extension potential.
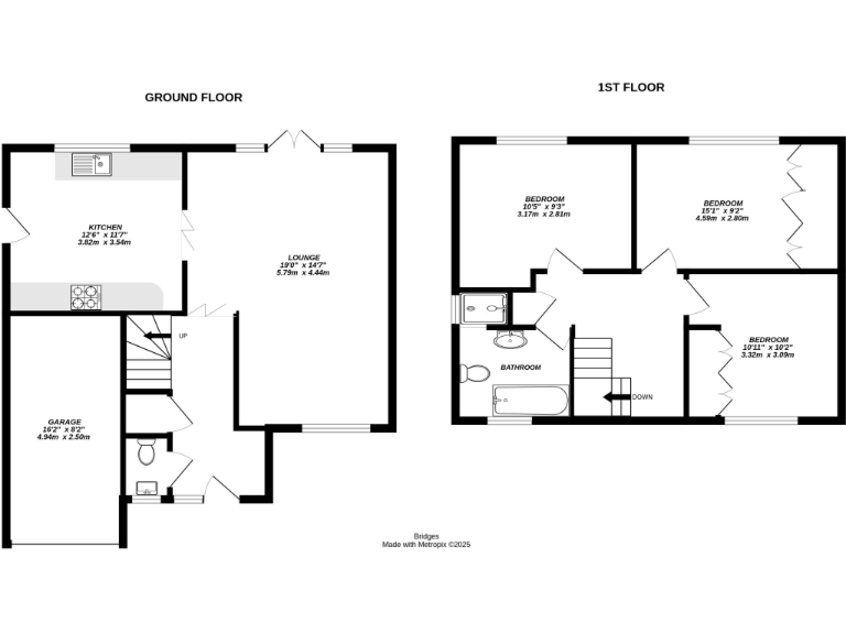
Three double bedrooms with a spacious 20ft lounge/dining area
Generous circa 70ft private rear garden, room for outdoor living
Driveway parking for up to four cars plus integral single garage
Additional land included in the title; potential to extend (STPP)
Refitted cloakroom and modern kitchen/dining; utility/storage room
Single family bathroom only; might be limiting for larger families
Cavity walls assumed uninsulated — potential energy upgrades needed
EPC C (69) and Council Tax Band E (above average)
Set on a generous, non-estate plot in the heart of Binfield village, this three-bedroom detached home offers comfortable family living with genuine scope to increase value. The house is presented in good order with a modern kitchen/dining area, refitted cloakroom and a 20ft lounge opening directly onto a private circa 70ft rear garden — an excellent space for children and entertaining.
Practical benefits include a wide block-paved driveway for up to four cars, an integral single garage, a useful utility/storage room and additional land included in the title. The property’s size and larger-than-average plot make it an attractive proposition for families who may want to extend or reconfigure (subject to planning permission).
There are a few factual points to note: the home has a single family bathroom upstairs, Council Tax Band E (above average) and cavity walls that are assumed to lack insulation, which could be improved for energy efficiency. The EPC rating is C (69). Any significant extension or development will require planning consent.
Situated close to highly regarded schools, local village amenities and with fast commuter links to Wokingham, Bracknell and major roads (M3, M4, A329), this property suits buyers seeking space, good outdoor privacy and long-term improvement potential. For a family looking to move into a very desirable village setting with future scope to add value, this is a rare opportunity.
3 bedroom detached house for sale in Porthcawl Drive, Binfield, Bracknell, Berkshire, RG42 — £550,000 • 3 bed • 2 bath • 565 ft²
5 bedroom detached house for sale in Benetfeld Road, Binfield, Bracknell, RG42 — £1,000,000 • 5 bed • 3 bath • 2400 ft²
3 bedroom detached house for sale in Culvercroft, Binfield, Bracknell, Berkshire, RG42 — £575,000 • 3 bed • 2 bath • 1254 ft²
3 bedroom semi-detached house for sale in Roebuck Estate, Binfield, Bracknell, Berkshire, RG42 — £450,000 • 3 bed • 1 bath • 1040 ft²
4 bedroom detached house for sale in Benetfeld Road, Binfield, Bracknell, Berkshire, RG42 — £835,000 • 4 bed • 1 bath • 1642 ft²
4 bedroom semi-detached house for sale in Hillside Drive, Binfield, RG42 — £650,000 • 4 bed • 2 bath • 2078 ft²






























































