Ready-to-move suburban starter close to schools and transport links.
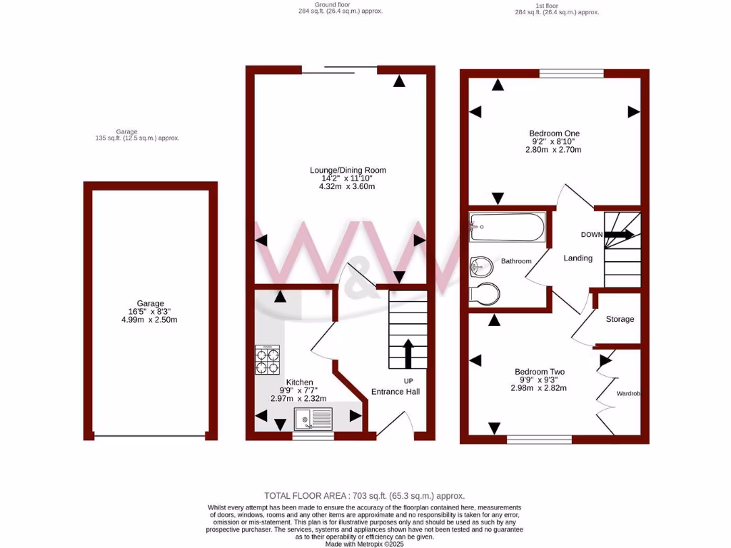
Chain-free two-bedroom end-of-terrace, approx. 703 sq ft
Private rear garden with lawn, patio and planted beds
Single garage plus driveway parking included
Within walking distance of shops, primary schools and Swanwick station
Gas central heating; double glazing installed before 2002
Compact layout; best suited to small families or first-time buyers
Local area: very affluent but reported high crime level
Freehold tenure; built c.1996–2002, some older fittings likely
A compact, chain-free two-bedroom end-of-terrace with a private rear garden, single garage and driveway parking. At about 703 sq ft, the layout suits a small family, couple or first-time buyer seeking low-maintenance suburban living close to local shops and schools. Whiteley Shopping Centre, two well-rated primary schools and transport links (Swanwick station, A27/M27) are within easy walking or short driving distance.
The property is well presented with gas central heating, double glazing (installed before 2002) and a functional kitchen and bathroom. The rear garden is landscaped with lawn, patio and planted beds, offering private outdoor space for children or pets. Garage and driveway provide secure parking—a valuable feature in the area.
Honest considerations: the home is compact and best suited to buyers needing two bedrooms rather than larger family accommodation. The local crime level is reported as high, which may influence some buyers’ considerations about security and insurance. Built around 1996–2002, some elements (windows, fittings) may be older and could need updating over time.
Overall this freehold, chain-free house offers straightforward suburban living with good local amenities and transport links. It represents sensible value for a first-time buyer or small family wanting a ready-to-move-in home with modest outdoor space and parking.
2 bedroom semi-detached house for sale in Christie Avenue, Whiteley, Fareham, PO15 — £280,000 • 2 bed • 1 bath • 597 ft²
2 bedroom end of terrace house for sale in Rosemary Gardens, Whiteley, PO15 — £315,000 • 2 bed • 2 bath • 788 ft²
3 bedroom semi-detached house for sale in Saffron Way, Whiteley, PO15 — £350,000 • 3 bed • 1 bath • 887 ft²
3 bedroom end of terrace house for sale in Thyme Avenue, Whiteley, PO15 — £329,995 • 3 bed • 2 bath • 952 ft²
2 bedroom semi-detached house for sale in Thyme Avenue, Whiteley, PO15 — £300,000 • 2 bed • 1 bath • 604 ft²
2 bedroom house for sale in Sorrel Drive, Whiteley, Fareham, PO15 — £260,000 • 2 bed • 1 bath • 487 ft²










































