Compact period home in the heart of Long Crendon, ideal for first-time buyers.
No onward chain — available for quick completion
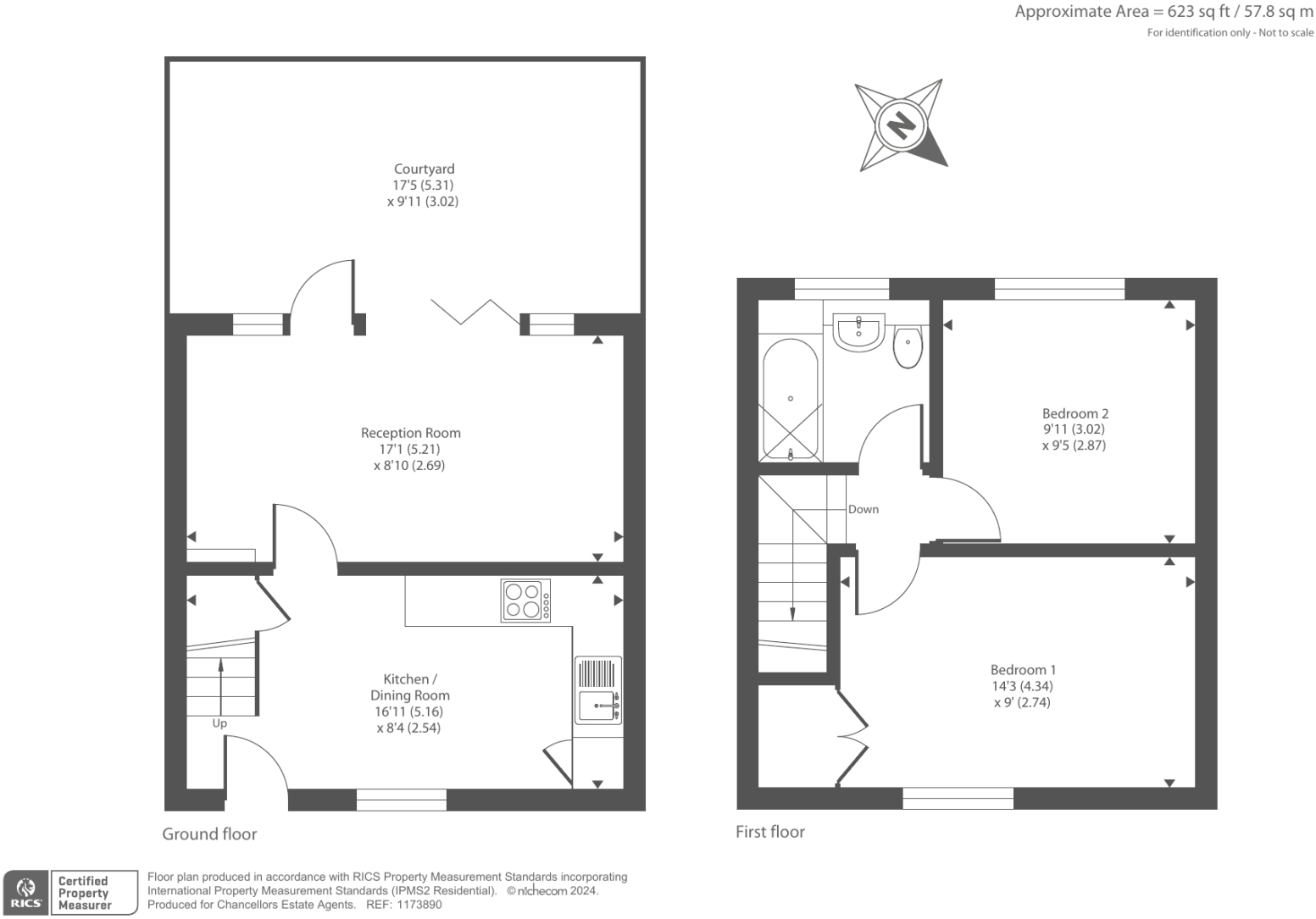
A compact two-bedroom Victorian terrace centrally located in Long Crendon, offered with no onward chain. The house blends period character with some modern touches — an integrated kitchen and a sitting room with bi-fold doors that open to a private, walled courtyard.
Well suited to a first-time buyer or someone downsizing, the layout includes two double bedrooms and a main bathroom across about 603 sq ft. The property is freehold, gas-heated with a boiler and radiators, and benefits from double glazing (installation date unknown).
Practical points: the plot and gardens are very small, so outdoor space is limited to the courtyard. The property is solid-brick (built c.1900–1929) and likely lacks wall insulation; energy upgrades or insulation works may be needed to improve comfort and running costs. Council tax is moderate and there is no flooding risk.
Village life is a strong selling point — shops, pubs, leisure facilities and primary/secondary schooling are all within easy reach. For buyers prioritising location and character over internal space, this chain-free cottage offers immediate occupation and scope to personalise.
2 bedroom terraced house for sale in Easington Terrace, Long Crendon, HP18 — £375,000 • 2 bed • 1 bath • 551 ft²
2 bedroom cottage for sale in Long Crendon, Buckinghamshire, HP18 — £475,000 • 2 bed • 2 bath • 960 ft²
3 bedroom detached house for sale in Ketchmere Close, Long Crendon, Aylesbury, HP18 — £450,000 • 3 bed • 1 bath • 868 ft²
4 bedroom semi-detached house for sale in Thame Road, Long Crendon, HP18 — £499,950 • 4 bed • 1 bath • 1389 ft²
2 bedroom cottage for sale in High Street, Long Crendon, Aylesbury, HP18 — £475,000 • 2 bed • 2 bath • 926 ft²
4 bedroom detached house for sale in Chearsley Road, Long Crendon, HP18 — £765,000 • 4 bed • 3 bath • 1659 ft²






























































































































