Bright starter home with south-facing garden and strong transport links.
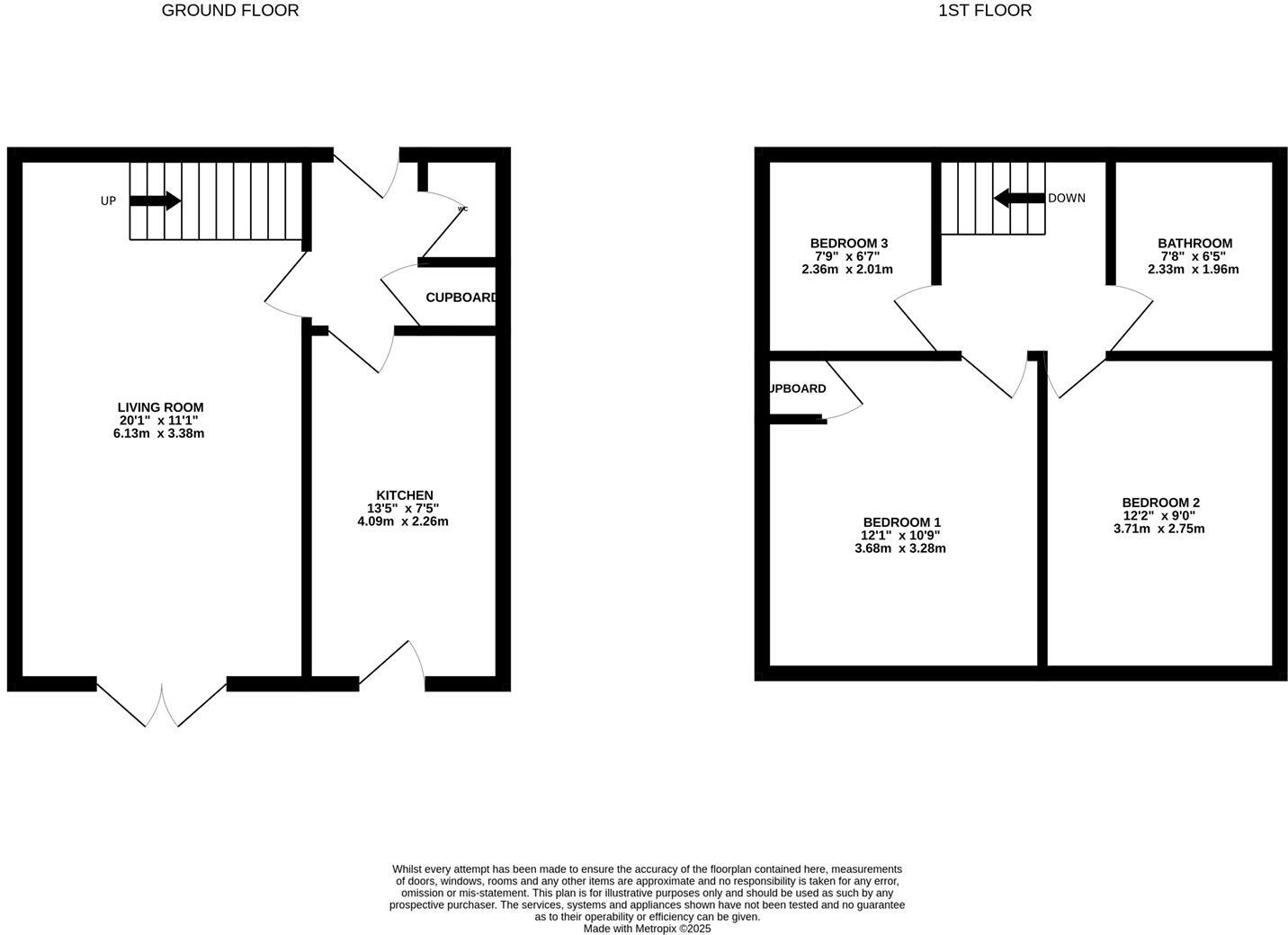
Chain free freehold three-bedroom terraced house
This three-bedroom terraced house on Park Avenue offers a straightforward entry into Cottingham village life. The property is chain free and freehold, with a bright reception room, rear south-facing garden and practical layout that suit first-time buyers or those looking to downsize.
The home retains mid‑century character with large windows and a feature fireplace in the living room. The kitchen and reception spaces are useable as presented, while three bedrooms upstairs provide flexible sleeping or workspace. Fast broadband and excellent mobile signal support working from home and streaming.
There are a few practical matters to note: the house is small at around 665 sq ft and has cavity walls assumed to be without added insulation, so energy efficiency improvements may be needed. The property has a single bathroom plus a downstairs WC, and some modernisation would improve comfort and value.
Location is a strong selling point: established schools, local shops, leisure facilities and regular bus links to Hull and Beverley are within easy reach. For a buyer seeking an affordable, well‑located starter home with scope to personalise, this offers clear potential.
2 bedroom terraced house for sale in Cornwall Street, Cottingham, East Riding of Yorkshire, HU16 — £130,000 • 2 bed • 1 bath • 652 ft²
2 bedroom end of terrace house for sale in 18 Southwood Gardens, Cottingham, HU16 — £169,950 • 2 bed • 1 bath • 571 ft²
3 bedroom house for sale in Corona Drive, Hull, HU8 — £164,950 • 3 bed • 1 bath • 842 ft²
3 bedroom terraced house for sale in Park Lane, Cottingham, HU16 — £255,000 • 3 bed • 1 bath • 892 ft²
3 bedroom semi-detached house for sale in Northgate, Cottingham, East Riding of Yorkshire, HU16 — £268,900 • 3 bed • 2 bath • 1239 ft²
3 bedroom semi-detached house for sale in Beechdale, Cottingham, HU16 — £250,000 • 3 bed • 1 bath • 748 ft²






















































































































































