Move-in-ready home near schools and town centre.
Three bedrooms, one modern family bathroom
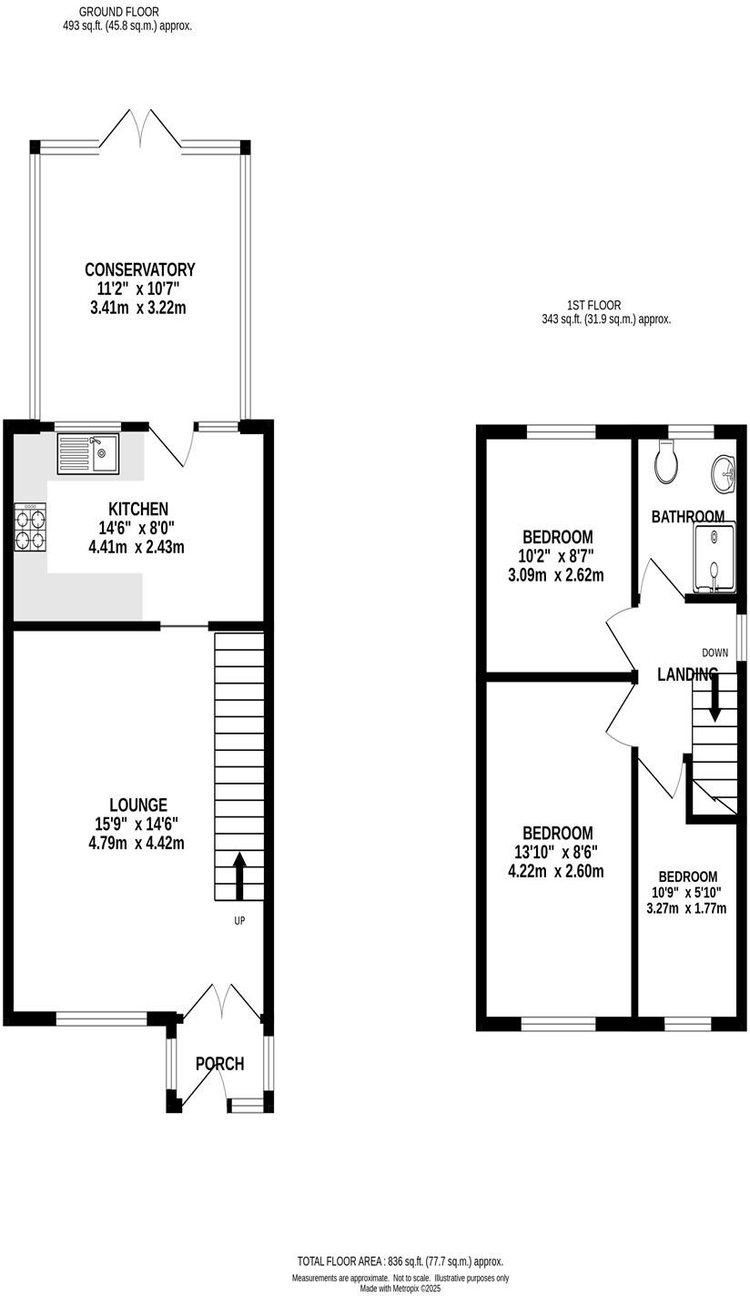
A neatly presented three-bedroom semi-detached home in Chapel-en-le-Frith, ideal for first-time buyers or small families. The ground floor flows from a comfortable living room into a modern fitted kitchen and a bright conservatory that opens onto a low-maintenance paved rear garden. Upstairs are three well-proportioned bedrooms served by a single modern bathroom.
Practical features include double glazing, mains gas central heating with a boiler and radiators, and fast broadband with excellent mobile signal. The property sits on a small plot with a modest front garden and paved rear yard, making outdoor upkeep straightforward. Local amenities and schools are within easy walking distance, and frequent bus services connect to the town and surrounding area.
Buyers should note key practical points: the rear garden is small and paved, there is only one bathroom for three bedrooms, and services have not been tested — buyers should arrange their own inspections. Tenure is reported as freehold subject to verification by solicitors; confirm legal details before committing. Overall this is a well-presented, move-in-ready house offering sensible running costs and good local convenience.
3 bedroom semi-detached house for sale in Thomas Meadows, Chapel-En-Le-Frith, High Peak, SK23 — £279,950 • 3 bed • 1 bath • 749 ft²
3 bedroom semi-detached house for sale in Warmbrook Road, Chapel-En-Le-Frith, High Peak, SK23 — £255,000 • 3 bed • 1 bath • 854 ft²
3 bedroom semi-detached house for sale in Grange Park Road, Chapel-En-Le-Frith, High Peak, SK23 — £260,000 • 3 bed • 1 bath • 861 ft²
3 bedroom terraced house for sale in Westbrook Close, Chapel-En-Le-Frith, SK23 — £240,000 • 3 bed • 1 bath • 904 ft²
3 bedroom semi-detached house for sale in Frith View, Chapel-En-Le-Frith, High Peak, SK23 — £250,000 • 3 bed • 1 bath • 940 ft²
3 bedroom semi-detached house for sale in Sovereign Way, Chapel-En-Le-Frith, SK23 — £270,000 • 3 bed • 2 bath • 829 ft²


























































