Move-in ready three-bed near school with parking and garage.
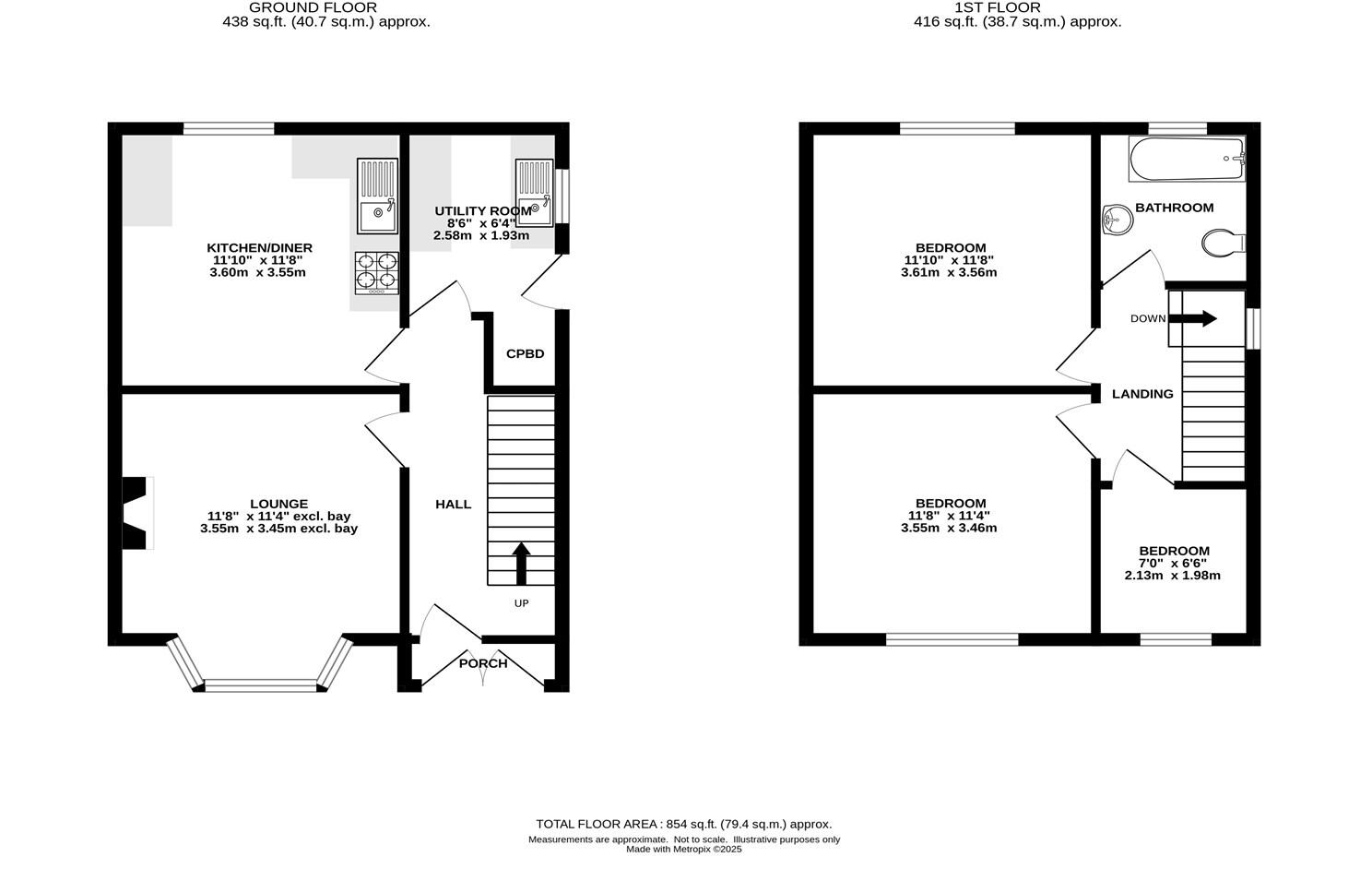
- Bay-front living room with feature fireplace
- Modern kitchen-diner and separate utility room
- Three well-proportioned bedrooms, one family bathroom
- Off-road parking plus detached garage at rear
- Small rear garden with paved patio and lawn
- Built 1950s–66; cavity walls likely without insulation
- Double glazing installed before 2002; energy upgrades possible
- Freehold tenure; low flood risk and affordable council tax
A well-proportioned, bay-fronted three-bedroom semi offers comfortable family living in Chapel-en-le-Frith. The ground floor flows from a bay-front living room into a modern kitchen-diner and adjoining utility, giving practical space for daily life and entertaining. Off-road parking and a detached garage add useful storage and vehicle space.
Upstairs are three good-sized bedrooms and a single family bathroom. The house benefits from gas central heating, double glazing and modern fittings in the kitchen and bathroom, so it is ready to occupy while still offering scope to personalise. The plot is modest but includes a paved patio and lawned rear garden enclosed by timber fencing.
Practical points to note: the property was constructed in the 1950s–60s with cavity walls likely uninsulated and double glazing fitted before 2002, so further insulation or energy upgrades could improve efficiency. The plot is small and the single bathroom may suit families prepared to share facilities. Tenure is freehold and council tax is described as affordable.
Set close to a well-regarded primary school and within easy reach of the town centre, this home suits a family seeking a move-in-ready house with scope for modest improvement. Broadband speeds are fast and mobile signal is excellent, supporting home working and connectivity.
 3 bedroom semi-detached house for sale in Thomas Meadows, Chapel-En-Le-Frith, High Peak, SK23 — £279,950 • 3 bed • 1 bath • 749 ft²
 3 bedroom semi-detached house for sale in Thomas Meadows, Chapel-En-Le-Frith, High Peak, SK23 — £279,950 • 3 bed • 1 bath • 749 ft² 3 bedroom semi-detached house for sale in Grange Park Road, Chapel-En-Le-Frith, High Peak, SK23 — £260,000 • 3 bed • 1 bath • 861 ft²
 3 bedroom semi-detached house for sale in Grange Park Road, Chapel-En-Le-Frith, High Peak, SK23 — £260,000 • 3 bed • 1 bath • 861 ft² 3 bedroom semi-detached house for sale in Frith View, Chapel-En-Le-Frith, SK23 — £250,000 • 3 bed • 1 bath • 1014 ft²
 3 bedroom semi-detached house for sale in Frith View, Chapel-En-Le-Frith, SK23 — £250,000 • 3 bed • 1 bath • 1014 ft² 3 bedroom semi-detached house for sale in Frith View, Chapel-En-Le-Frith, High Peak, SK23 — £250,000 • 3 bed • 1 bath • 940 ft²
 3 bedroom semi-detached house for sale in Frith View, Chapel-En-Le-Frith, High Peak, SK23 — £250,000 • 3 bed • 1 bath • 940 ft² 3 bedroom semi-detached house for sale in Beresford Road, Chapel-En-Le-Frith, High Peak, SK23 — £280,000 • 3 bed • 1 bath • 850 ft²
 3 bedroom semi-detached house for sale in Beresford Road, Chapel-En-Le-Frith, High Peak, SK23 — £280,000 • 3 bed • 1 bath • 850 ft² 3 bedroom semi-detached house for sale in Manchester Road, Chapel-En-Le-Frith, SK23 — £250,000 • 3 bed • 1 bath • 1430 ft²
 3 bedroom semi-detached house for sale in Manchester Road, Chapel-En-Le-Frith, SK23 — £250,000 • 3 bed • 1 bath • 1430 ft²


















































