**Standout Features:**
- Prime mixed-use property in a bustling urban area
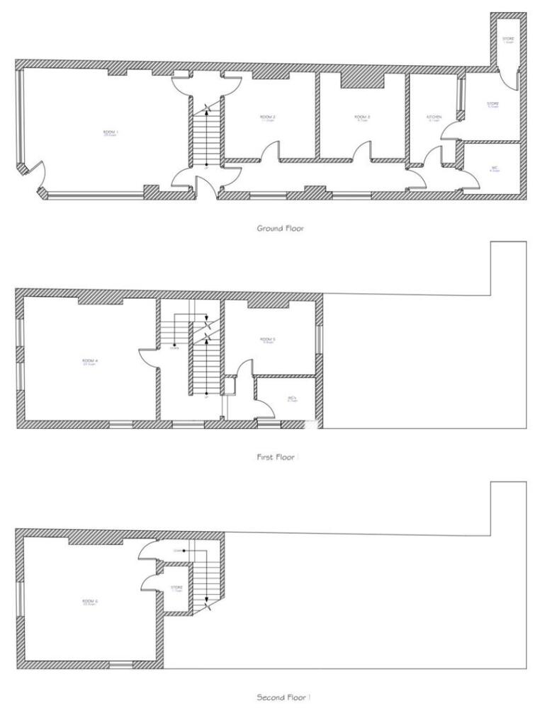
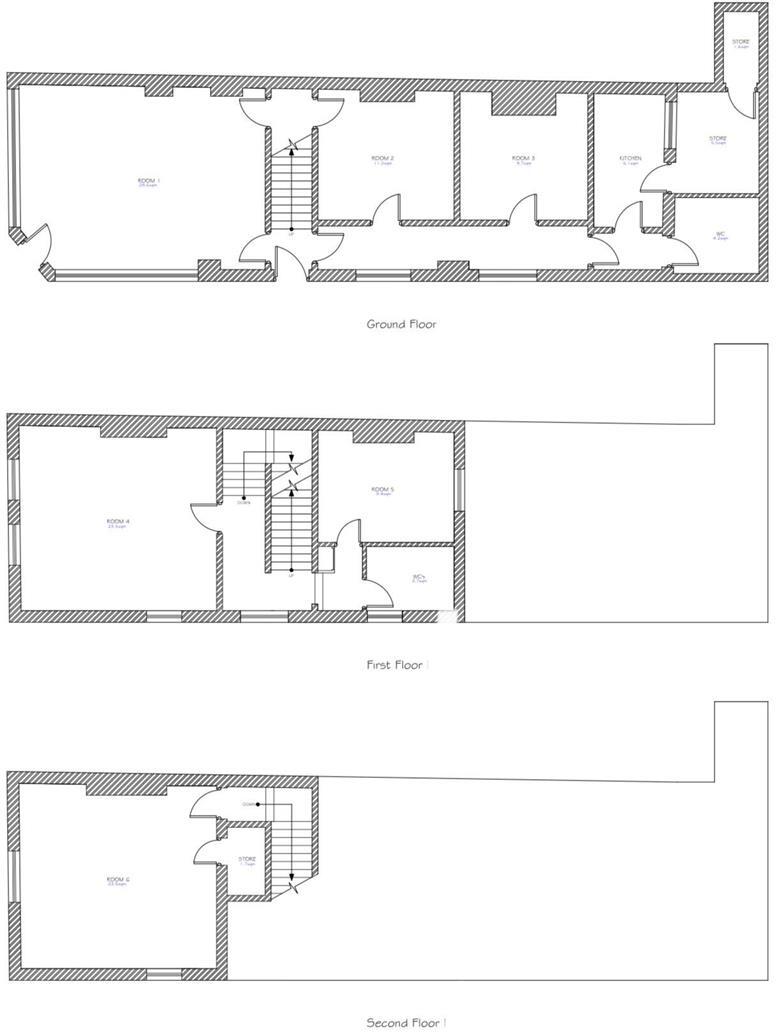
- Approximately 2,000 sqft with potential for residential conversion (subject to planning)
- Ground floor retail space with additional office room available
- Located conveniently near Staffordshire University and the main railway station
- Characterful Victorian corner building with a solid brick exterior
**Concerns:**
- Property requires renovations and possible reconfiguration for residential living
- High local crime rates and area deprivation may be considerations for some buyers
This Victorian corner property in Hartshill presents an exceptional investment opportunity with significant potential for conversion to residential use, pending planning approval. Boasting approximately 2,000 sqft of versatile accommodations, it features a spacious ground floor retail unit, complemented by office space at the rear, making it a blank canvas for productive redevelopment. The building's notable location, just a short stroll from Staffordshire University and the main railway station, enhances its appeal to prospective residents, particularly students and young families seeking urban convenience.
While the property does require some work, its solid brick structure and large windows provide a promising base for transformation. With an empathetic understanding of the local community dynamics—including high crime rates and socioeconomic challenges—this property invites investors with a vision to rejuvenate and contribute positively to the area. Act quickly to seize this rare opportunity to create a unique living space in a vibrant neighborhood!
Land for sale in Hill Street, Stoke on Trent, ST4 — £225,000 • 1 bed • 1 bath • 3410 ft²
3 bedroom terraced house for sale in Market Street, Stoke-on-Trent, Staffordshire, ST3 — £90,000 • 3 bed • 1 bath • 1260 ft²
Mixed use property for sale in 47-49 London Road, Chesterton, Newcastle, ST5 — £150,000 • 1 bed • 1 bath
4 bedroom end of terrace house for sale in Dyke Street, Stoke-on-Trent, Staffordshire, ST1 — £210,000 • 4 bed • 4 bath • 485 ft²
Residential development for sale in 24-28 Piccadilly, Stoke-On-Trent, Staffordshire ST1 1EG, ST1 — £100,000 • 1 bed • 1 bath • 2766 ft²
4 bedroom terraced house for sale in 1 Pottery House, 3 Adventure Place, Stoke-on-Trent, Staffordshire, ST1 3AF, ST1 — £135,000 • 4 bed • 4 bath • 1238 ft²






















