Spacious steading home with landscaped gardens and optional one-acre field.
- Five double bedrooms, principal with dressing area and ensuite
- Ashley Ann kitchen, quartz worktops and twin ovens
- Open-plan living with French doors to landscaped garden
- Two log burners and multiple reception rooms
- Private driveway; garage located in nearby shared terrace
- Optional adjacent one-acre field available by separate negotiation
- Slow broadband speeds locally
- Council tax described as quite expensive
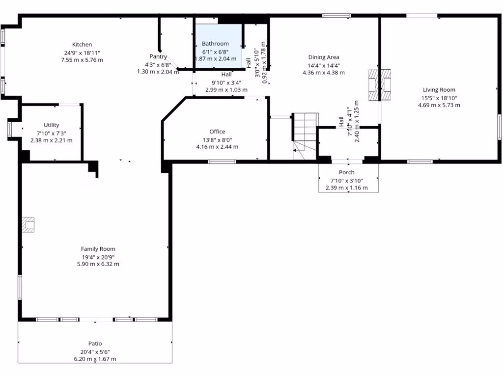
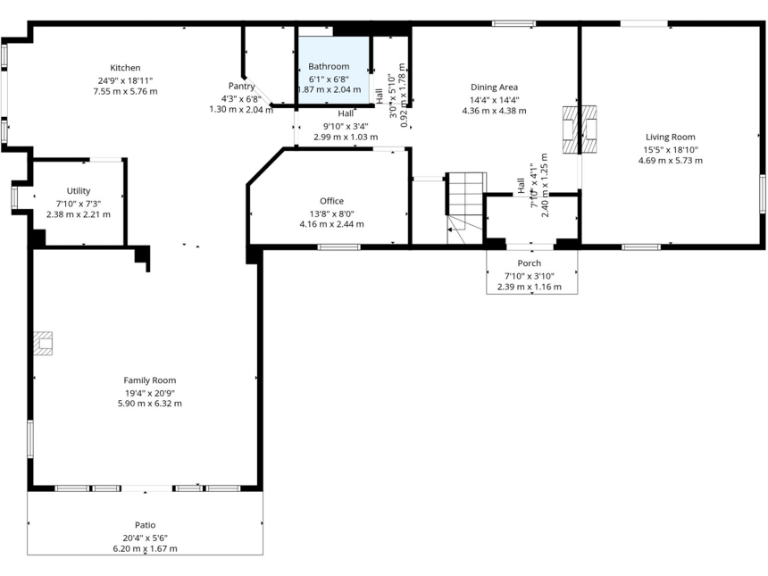
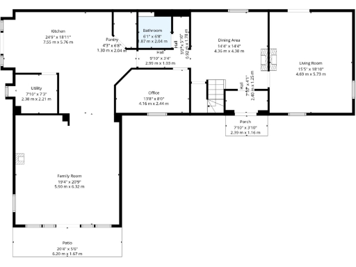
This five-bedroom barn conversion blends contemporary fittings with original stone character across generous living space. The Ashley Ann kitchen with quartz worktops, twin ovens and French doors anchors an open-plan family area, while two log burners create cosy focal points throughout. The principal suite includes a dressing area and ensuite; a second bedroom also has an ensuite, plus a modern family bathroom serves remaining bedrooms.
Set within an exclusive steading development near Dunblane, the property sits in beautifully landscaped wraparound gardens, with a private driveway and garage nearby. An adjacent one-acre field is available separately, offering scope for recreation, equestrian use or extra outdoor space. Large windows and multiple access points to the garden maximise natural light and indoor–outdoor flow.
Practical considerations: broadband speeds in the area are slow and council tax is described as quite expensive. The property forms part of a communal steading with shared courtyard areas and the garage sits in a nearby shared terrace. The wider locality is rurally affluent but the immediate area records high deprivation levels, so suitability depends on buyer priorities.
Overall this is a spacious, well-finished family home for buyers seeking rural character with modern comforts. It will suit those wanting generous accommodation, outdoor potential and easy access to Dunblane’s schools and rail links, while accepting some communal management and slower broadband performance.
5 bedroom detached house for sale in Kinross, KY13 — £750,000 • 5 bed • 4 bath • 2981 ft²
5 bedroom detached house for sale in The Barn, Craigton Farm, Stirling, FK9 — £895,000 • 5 bed • 5 bath • 3003 ft²
4 bedroom detached house for sale in Dunblane, FK15 — £540,000 • 4 bed • 2 bath • 1690 ft²
4 bedroom semi-detached house for sale in 2 The Dairy, Burnhouse Farm, By Denny, FK6 — £445,000 • 4 bed • 3 bath • 2013 ft²
4 bedroom house for sale in Rossie Steadings, Dunning, Perth, PH2 — £494,950 • 4 bed • 3 bath • 1895 ft²
5 bedroom detached house for sale in Stonehill Steading, Dunblane, FK15 — £780,000 • 5 bed • 3 bath • 3423 ft²


















































































































































