Detached four-bed with income-producing studio and extensive wildlife gardens.
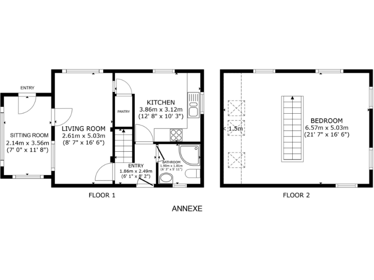
Approximately 157 sqm main house; total ~1690 sq ft
Set within roughly three-quarters of an acre near Kinbuck, this spacious 4-bed detached home blends family living with proven income potential. The main house offers flexible accommodation across one-and-a-half storeys: open-plan entrance and sitting area, living and dining rooms, kitchen, two ground-floor bedrooms and shower room, plus a first-floor master with en suite and an additional bedroom or study.
A fully self-contained detached studio with a valid holiday let licence sits in the grounds and includes living space, kitchen, shower room and a first-floor bedroom. The studio has a strong letting history, providing an immediate revenue stream or private guest accommodation. Outside, mature gardens, a pond, fruit trees, vegetable beds and free-ranging chickens create a wildlife-rich, productive setting that will appeal to keen gardeners and nature lovers.
Practical features include a stable and tack-room with power and lighting, ample private parking and generous outbuilding/garage potential. The property is sold freehold at auction with a closing date, so buyers should note the timescale and prepare accordingly.
Notable practical drawbacks: broadband speeds are slow, there is no garage, council tax is described as expensive, and the rural location means services and shops are a short drive away. These factors are balanced by excellent mobile signal, large plot size, and versatile accommodation suitable for family life, rural hobbies or investment use.
5 bedroom semi-detached house for sale in Glassingall, Cairnston Steading, FK15 — £795,000 • 5 bed • 4 bath • 3003 ft²
4 bedroom detached house for sale in Thornhill, Stirling, FK8 — £625,000 • 4 bed • 4 bath • 2411 ft²
4 bedroom detached house for sale in The Steading, Argaty Road, Doune, Stirlingshire, FK16 — £650,000 • 4 bed • 4 bath • 2293 ft²
5 bedroom detached house for sale in Kinross, KY13 — £750,000 • 5 bed • 4 bath • 2981 ft²
6 bedroom detached house for sale in Overglinns, Fintry, Glasgow, G63 — £720,000 • 6 bed • 5 bath • 3057 ft²
4 bedroom detached house for sale in Broomhill Cottage, Bridge of Allan, FK9 — £920,000 • 4 bed • 3 bath • 2820 ft²






























































































































































