**Standout Features:**
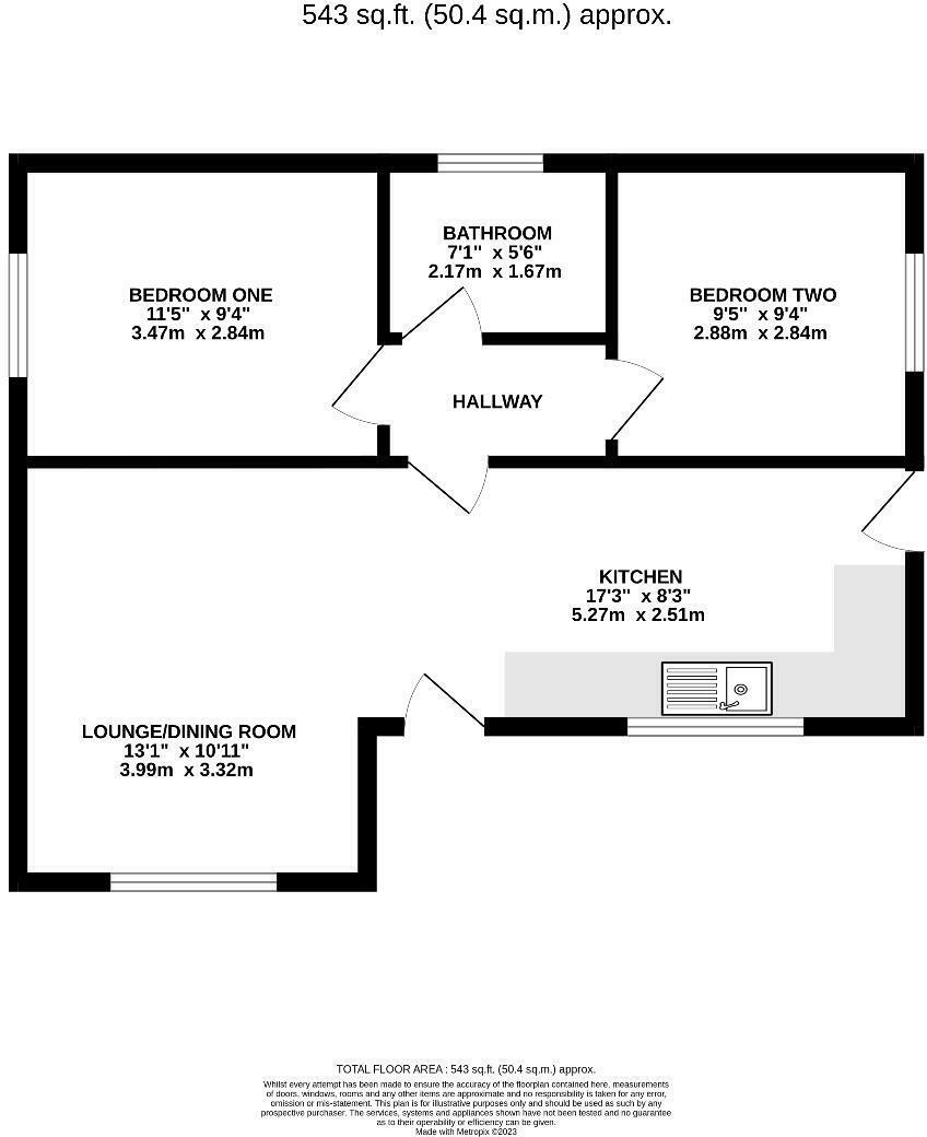
- Newly built 2-bedroom detached bungalow (543 sq ft)
- Part of the discounted sale affordable housing program
- Ownership of 100% value capped at 80%
- Tranquil rural location with stunning views
- Freehold tenure with no chain
- Modern design featuring energy-efficient amenities
- Off-street parking and private garden
- Low-maintenance living ideal for first-time buyers or investors
Welcome to an extraordinary opportunity to own an immaculate new build detached bungalow nestled in the serene Wettenhall countryside. Spanning 543 square feet, this 2-bedroom gem comes as part of an affordable housing program, allowing you to own 100% of the property at just 80% of the market value. Take delight in the tranquil surroundings, picturesque rural views, and a location that promises both peace and accessibility to vibrant local amenities.
Equipped with modern comforts such as central heating and double glazing, the bungalow features a stylish, low-maintenance design perfect for first-time buyers or anyone looking to downsize or invest. Ideally situated, you can enjoy off-street parking and a private garden, making it an inviting retreat.
Don’t miss this rare chance to secure an exceptional home in a sought-after area—significant interest is expected, so viewing is essential. Experience the future potential and comfort this quaint residence has to offer.
2 bedroom detached bungalow for sale in Wistaston Green Road, Wistaston, Cheshire, CW2 — £230,000 • 2 bed • 1 bath • 620 ft²
4 bedroom detached house for sale in The Green, Long Lane, Wettenhall, CW7 — £632,000 • 4 bed • 3 bath • 1727 ft²
2 bedroom detached bungalow for sale in Badcocks Lane, Spurstow, Tarporley, CW6 — £220,000 • 2 bed • 2 bath • 840 ft²
2 bedroom semi-detached bungalow for sale in Perfectly positioned bungalow with far reaching countryside views, CW9 — £300,000 • 2 bed • 1 bath • 877 ft²
2 bedroom semi-detached bungalow for sale in Green Hill Road, Kelsall, CW6 — £350,000 • 2 bed • 1 bath • 805 ft²
2 bedroom detached bungalow for sale in Osborne Grove, Shavington, Cheshire, CW2 — £210,000 • 2 bed • 1 bath • 743 ft²






































