**Standout Features:**
- Contemporary semi-detached bungalow built in 2020
- Impeccable condition with a balance of a Premier warranty
- Exclusive development for those aged 55 and over
- Walking distance to healthcare facilities and community hub
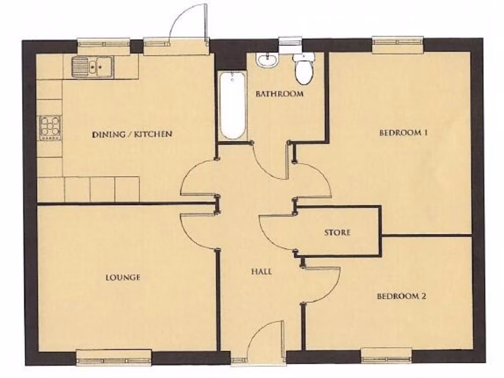
- Two spacious double bedrooms, recently upgraded bathroom with walk-in shower
- Good-sized kitchen diner with integrated appliances
- Private rear garden with quality boundaries
- Off-street parking for two vehicles
Discover a beautifully presented semi-detached bungalow in the sought-after Green Hill Road, Kelsall, perfect for those aged 55 and over. This nearly new property, completed in 2020 and still under warranty, offers a modern, low-maintenance lifestyle. Within a minute’s walk, you’ll find essential amenities including a state-of-the-art medical center and a well-being hub.
The interior features two generously sized double bedrooms, a contemporary dining kitchen with integrated appliances, and a stylish bathroom that has been recently upgraded. Enjoy low running costs thanks to excellent insulation and modern heating solutions. The private rear garden, complete with high-quality fencing, provides a tranquil escape, while the driveway accommodates two vehicles conveniently.
Take advantage of this rare opportunity to own a stylish home in a thriving community filled with charm, recreational activities, and scenic walks. With properties this well-positioned and developed for mature living in high demand, don’t miss your chance to experience the comfort and security offered in this idyllic setting. Schedule your viewing today!
3 bedroom detached bungalow for sale in Kelsborrow Way, Kelsall, CW6 — £400,000 • 3 bed • 2 bath • 1220 ft²
3 bedroom detached bungalow for sale in Green Hill Road, Kelsall, CW6 — £450,000 • 3 bed • 2 bath • 1055 ft²
3 bedroom bungalow for sale in Kelsall, Nr Tarporley, CW6 — £385,000 • 3 bed • 2 bath • 1001 ft²
2 bedroom detached bungalow for sale in Kelsborrow Way, Kelsall, CW6 — £340,000 • 2 bed • 1 bath • 800 ft²
4 bedroom detached house for sale in Beech House Yard, Chester Road, Kelsall, CW6 — £675,000 • 4 bed • 2 bath • 1997 ft²
3 bedroom detached house for sale in Chester Road, Kelsall, Tarporley, CW6 — £475,000 • 3 bed • 2 bath • 1941 ft²


































































