Spacious detached bungalow with large private gardens and garage, close to train and beach..
Triple-aspect sitting room with direct garden access
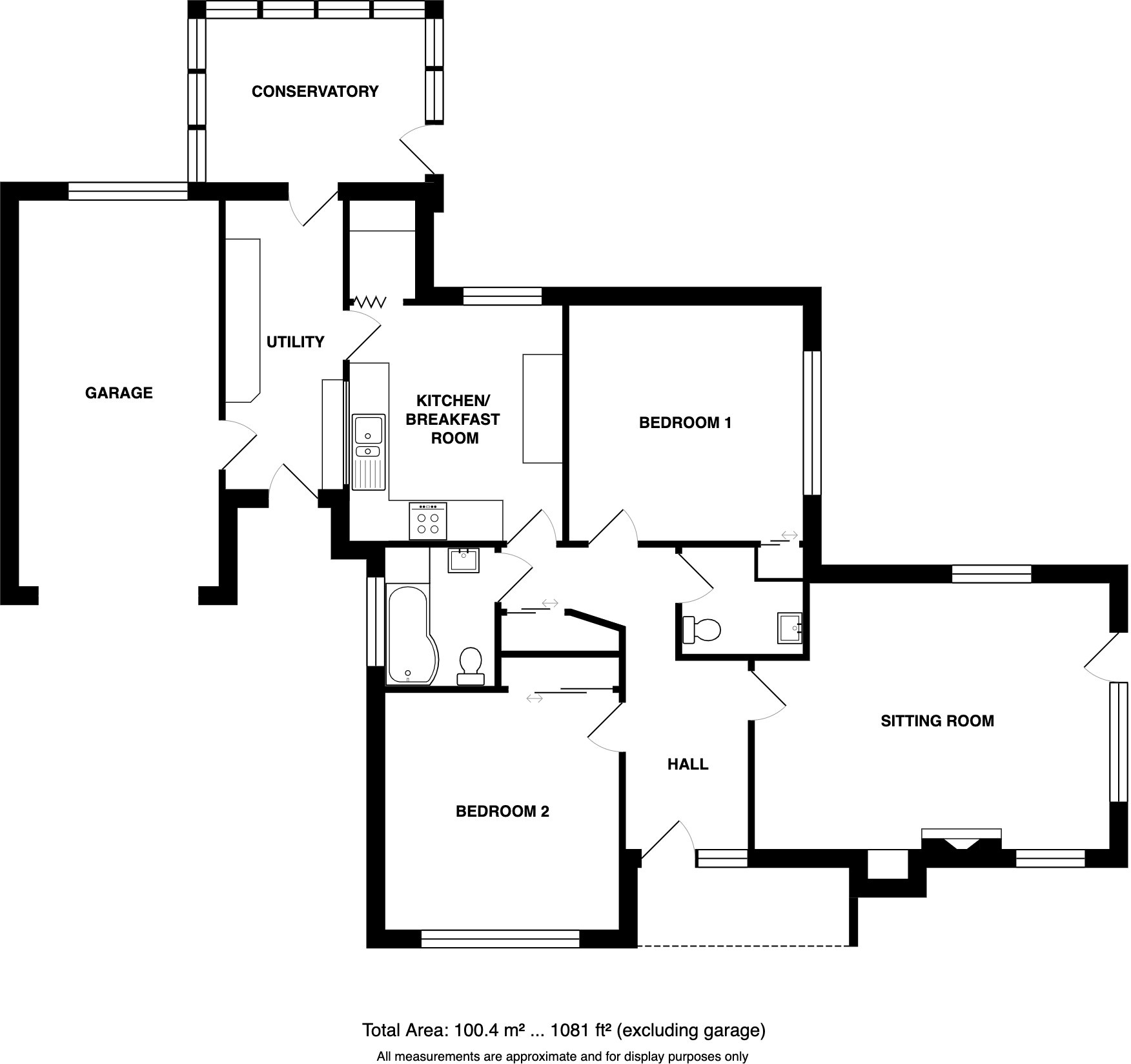
This detached two-bedroom bungalow on Station Close is a peaceful, single-storey home set within large, mature gardens and offered with no onward chain. Its generous room sizes — including a triple-aspect sitting room and conservatory — suit buyers seeking easy, ground-floor living with plentiful natural light and direct garden access. The attached garage and driveway parking for two to three cars add practical convenience.
The plot (about 0.17 acre) is a standout: south-facing front garden, sheltered side lawn, and wildlife-friendly planting create private outdoor space for gardening and relaxation. The garage has potential for conversion to additional accommodation subject to consents, and the utility room and fitted kitchen provide sensible day-to-day functionality. The bungalow is well-located for village amenities, the train station and the North Norfolk coastline.
Known considerations are set out plainly: the property was built in the mid-20th century and while well-presented, it may benefit from modernisation to meet contemporary standards. Double glazing was fitted before 2002 and the EPC is to follow. Broadband speeds in the area are reported slow. The rear boundary backs onto the railway and the British Railway Board retains rights of access for repairs — buyers should be comfortable with proximity to the line and occasional rail activity.
Overall, this bungalow will appeal to buyers seeking low-maintenance single-storey living in a seaside village: easy access to local shops, rail links and beaches, generous private gardens, and straightforward ownership on freehold terms. It’s especially suited to downsizers or those wanting a coastal retreat with potential to personalise.
3 bedroom detached bungalow for sale in West Runton, NR27 — £475,000 • 3 bed • 2 bath • 1149 ft²
2 bedroom detached bungalow for sale in West Runton, NR27 — £375,000 • 2 bed • 1 bath • 837 ft²
2 bedroom detached bungalow for sale in Station Road, West Runton, NR27 — £300,000 • 2 bed • 1 bath • 549 ft²
3 bedroom detached bungalow for sale in West Runton, NR27 — £400,000 • 3 bed • 1 bath • 1003 ft²
3 bedroom detached bungalow for sale in Renwick Park East, West Runton, NR27 — £450,000 • 3 bed • 1 bath • 1247 ft²
3 bedroom detached house for sale in West Runton, NR27 — £425,000 • 3 bed • 1 bath • 1423 ft²










































































