**Standout Features:**
- Spacious one-bedroom second-floor retirement apartment
- Located in the well-maintained Penrhyn Court development
- Close to amenities and seafront at Penrhyn Bay
- Onsite manager, 24-hour emergency call system, and a lift
- Access to communal lounge, library, laundry room, and guest suites
- Landscaped gardens and private off-street parking
- UPVC double glazing and electric storage heaters
**Potential Downsides:**
- Requires some modernisation, particularly in décor
- Average broadband speeds may not suit all needs
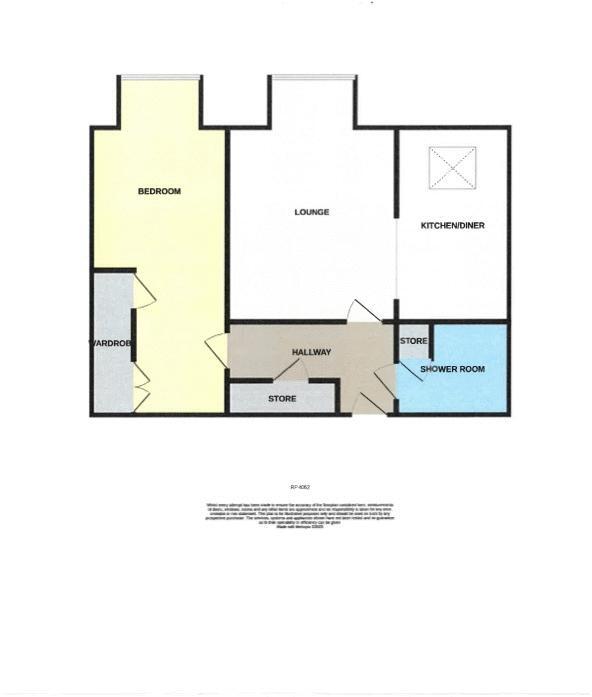
Embrace the charm of retirement living in this spacious and inviting one-bedroom apartment located within the welcoming community of Penrhyn Court, designed specifically for those over 60. This second-floor residence boasts a generous lounge with a feature bay window, a well-sized kitchen/diner, and a comfortable double bedroom with fitted wardrobes, ensuring ample storage space. The shower room is modern and easily accessible.
Step outside to enjoy meticulously landscaped communal gardens and resident amenities, including a lounge, library, and laundry facilities, promoting a vibrant community spirit. Secure your peace of mind with a 24-hour emergency call system and onsite manager, while being merely a stroll away from local shops and the picturesque Penrhyn Bay promenade. With low council tax and a price tag of £89,000, this is an excellent opportunity for those seeking comfort, convenience, and a supportive living environment. Act quickly—properties in this desirable development are in high demand!
1 bedroom retirement property for sale in Penrhyn Court, Penrhyn Bay, LL30 — £98,000 • 1 bed • 1 bath • 506 ft²
2 bedroom retirement property for sale in Penrhyn Court, Penrhyn Bay, LL30 — £99,950 • 2 bed • 1 bath • 958 ft²
2 bedroom retirement property for sale in Plas Penrhyn, Penrhyn Bay, Llandudno, LL30 — £99,950 • 2 bed • 1 bath • 539 ft²
1 bedroom apartment for sale in Penrhyn Court, Penrhyn Bay, Llandudno, Conwy, LL30 — £79,950 • 1 bed • 1 bath • 508 ft²
1 bedroom retirement property for sale in Coed Pella Road, Colwyn Bay, LL29 — £64,950 • 1 bed • 1 bath
2 bedroom retirement property for sale in Plas Penrhyn, Penrhyn Bay, Llandudno, LL30 — £105,000 • 2 bed • 1 bath • 531 ft²






















































