Newly renovated 1-bed upper flat with parking — ideal first-time buy near Sefton Park.
60% shared ownership—option to purchase 100% later
Newly renovated, ready to move into
Allocated off-street parking—rare local benefit
Long lease: 245 years remaining
Upper-floor flat; access via stairs only
Area deprivation high; local crime levels very high
Close to Sefton Park, Lark Lane amenities and transport
Small/average-sized 1-bed (549 sq ft), low council tax
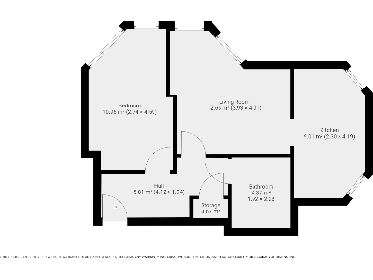
This well-presented one-bedroom upper flat offers an affordable entry into a popular L17 neighbourhood, offered as 60% shared ownership with the option to buy 100% later. The property is newly renovated and move-in ready, with a generous separate kitchen, bright lounge and a modern three-piece bathroom. Allocated off-street parking and a long lease (245 years) add practical value for first-time buyers.
Set close to Sefton Park and Lark Lane, the flat benefits from excellent transport links, fast broadband and strong mobile signal — useful for commuting or studying. The building’s Victorian character and high ceilings give a sense of space within the apartment’s 549 sq ft. Council tax is low, and there is no flooding risk.
Buyers should note material local issues: the wider area is classified as very deprived and crime levels are very high. The property is leasehold and sold via shared ownership, so buyers must be comfortable with that tenure and the associated obligations. The flat is upper-floor, so access involves stairs.
Overall this is a practical, low-maintenance option for a first-time buyer seeking an affordable home near green space and lively local amenities, provided you accept the local area’s social challenges and leasehold/shared-ownership arrangements.
1 bedroom apartment for sale in Bertram Road, Liverpool, Merseyside, L17 — £135,000 • 1 bed • 1 bath • 436 ft²
1 bedroom apartment for sale in Lydia Ann Street, Liverpool, Merseyside, L1 — £30,000 • 1 bed • 1 bath • 819 ft²
2 bedroom flat for sale in Salisbury Street, Liverpool, Merseyside, L3 — £65,000 • 2 bed • 1 bath • 784 ft²
1 bedroom apartment for sale in London Road, Liverpool, Merseyside, L3 — £93,750 • 1 bed • 2 bath • 636 ft²
1 bedroom apartment for sale in Sandon Street, Toxteth, Liverpool, L8 — £85,000 • 1 bed • 1 bath • 517 ft²
1 bedroom apartment for sale in Lydia Ann Street, Liverpool, Merseyside, L1 — £28,750 • 1 bed • 1 bath • 570 ft²














































































































