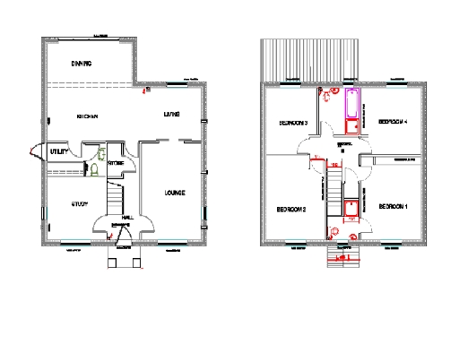
Contemporary four-bedroom house with low running costs and sunny rear garden.
A-rated energy efficiency with solar panels and battery storage system
Underfloor zoned heating to ground floor for comfort and efficiency
Open-plan kitchen/living/dining with bi-fold doors to south-westerly garden
Garage with electric door, block-paved driveway and EV charging point
Choice of high-quality kitchens and branded integrated appliances
Broadband speeds reported very slow in this location
Estate management company with an annual maintenance fee payable
Tenure stated freehold by developer but confirmation is pending
A four-bedroom detached new build on Wildflower Park designed for low running costs and contemporary family living. The open-plan kitchen/living/dining with bi-fold doors creates a bright ground-floor hub, with a separate lounge and study offering flexibility for home working or play. The south-westerly rear garden and paved patio suit afternoon sun and outdoor family time.
Built to current building regulations and energy-focused standards, the house comes with solar panels, battery storage, an EV charging point and underfloor heated ground floor — features that reduce energy bills and future-proof the home. A garage with electric door and block-paved driveway adds secure parking and storage.
Practical points to note: broadband speeds in the area are reported as very slow, and the development sits in a locally deprived/industrious-hardship area classification which may affect resale demand and local services. An estate management company will maintain public open spaces and an annual fee is payable. Tenure is reported as freehold by the developer but confirmation is awaited.
This property suits families seeking a modern, low-energy home near Louth’s schools and amenities, and buyers who value long-term running-cost savings. It is a new-build opportunity finished to a good specification but buyers should allow for estate fees, slow broadband and verify tenure details before committing.
4 bedroom detached house for sale in Plot 41, Wildflower Park, Louth, LN11 0HP, LN11 — £308,000 • 4 bed • 2 bath • 945 ft²
4 bedroom detached house for sale in Plot 40, Wildflower Park, Louth, LN11 0HP, LN11 — £345,000 • 4 bed • 2 bath • 942 ft²
4 bedroom detached house for sale in Plot 29, Wildflower Park, Louth, LN11 0HP, LN11 — £338,000 • 4 bed • 2 bath • 942 ft²
3 bedroom semi-detached house for sale in Plot 61, Wildflower Park, Louth, LN11 0HP, LN11 — £225,000 • 3 bed • 2 bath • 614 ft²
4 bedroom semi-detached house for sale in Plot 56, Wildflower Park, Louth, LN11 0HP, LN11 — £265,000 • 4 bed • 2 bath • 1055 ft²
2 bedroom semi-detached house for sale in Plot 42, Wildflower Park, Louth, LN11 0HP, LN11 — £199,000 • 2 bed • 1 bath • 417 ft²


















