Energy-efficient new three-bed with garage, incentives, and garden—ideal for first-time buyers.
New-build three-bedroom semi-detached, estimated completion Jan 2026
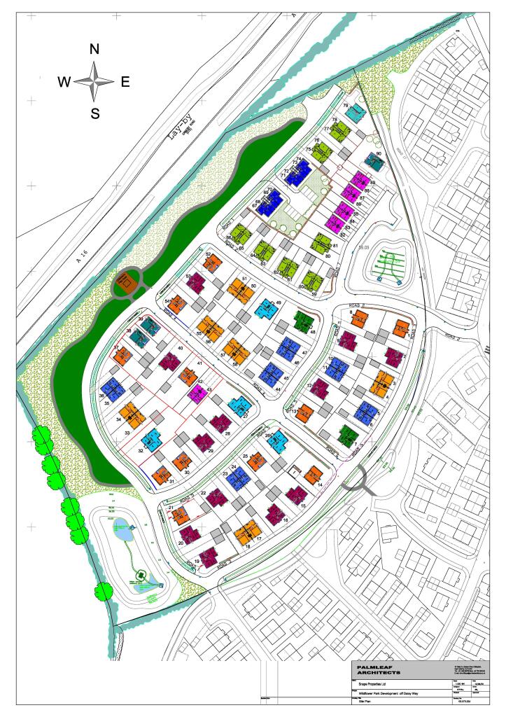
A newly built three-bedroom semi-detached home on Wildflower Park, ready early 2026 and offered with significant buyer incentives including a £15,000 deposit contribution, £3,500 flooring allowance and a £500 legal fee contribution (subject to terms). The Daisy Cottage is compact but efficient at around 614 sq ft, built to the latest regulations with solar panels and A-rated energy performance. Ground-floor underfloor heating and zoned controls add comfort and lower running costs.
The layout suits first-time buyers or small families: a generous lounge, open-plan kitchen/dining opening onto a paved patio and a fenced rear garden. There’s an en-suite to the main bedroom, a family bathroom and useful storage including understairs cupboard. Outside provides a block-paved driveway and single garage with power and light.
Practical points to note: broadband speeds in the area are reported as very slow and the wider area is classed as deprived, which may affect connectivity and resale in the short term. An estate management company will maintain public open spaces for an annual fee. The developer states the tenure is freehold but this is being confirmed — prospective buyers should verify tenure and any management charges before commitment.
Overall this is a low-maintenance, energy-efficient new build with modern finishes and warranty-backed construction. It will suit buyers seeking affordable running costs, a ready-to-move-in new home and proximity to Louth town amenities and well-regarded local schools. Budget-conscious purchasers should factor in the small internal size and local connectivity limitations when comparing to alternatives.
3 bedroom semi-detached house for sale in Plot 62, Wildflower Park, Louth, LN11 0HP, LN11 — £225,000 • 3 bed • 2 bath • 614 ft²
2 bedroom semi-detached house for sale in Plot 42, Wildflower Park, Louth, LN11 0HP, LN11 — £199,000 • 2 bed • 1 bath • 417 ft²
4 bedroom detached house for sale in Plot 41, Wildflower Park, Louth, LN11 0HP, LN11 — £308,000 • 4 bed • 2 bath • 945 ft²
2 bedroom semi-detached house for sale in Plot 43, Wildflower Park, Louth, LN11 0HP, LN11 — £199,000 • 2 bed • 1 bath • 417 ft²
4 bedroom detached house for sale in Plot 22, Wildflower Park, Louth, LN11 0HP, LN11 — £338,000 • 4 bed • 2 bath • 942 ft²


























