Compact newly renovated flat near Southfields tube and top schools.
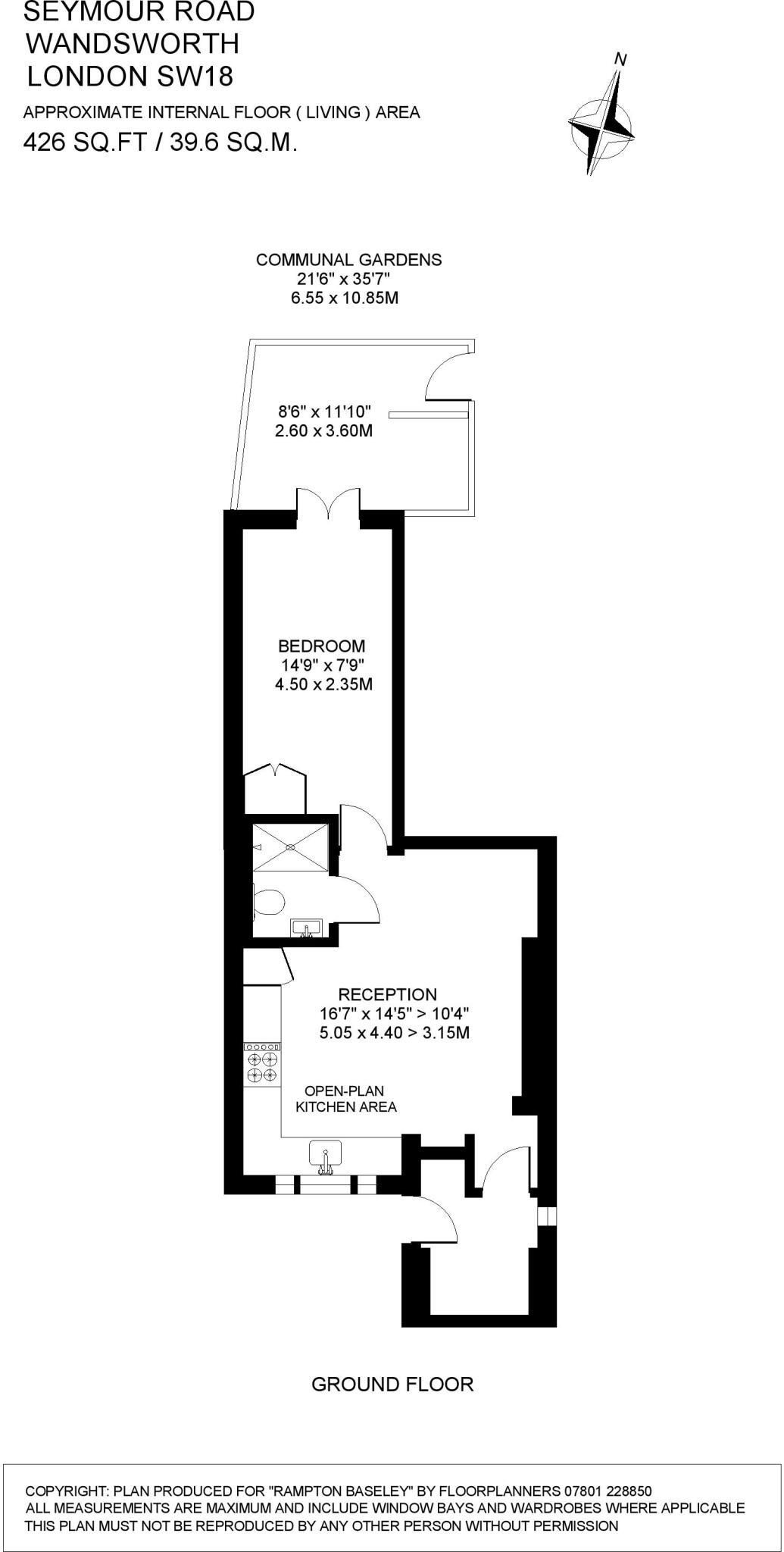
Private entrance and patio leading to communal gardens
A newly renovated lower‑ground one-bedroom apartment in a converted Victorian building, ideal for a first-time buyer or buy‑to‑let investor. The open-plan kitchen/reception is fitted with integrated appliances and marble worktops, and large sash-style windows bring good natural light to the living space despite the lower‑ground position. The bedroom opens directly onto a private patio that leads to well-kept communal gardens, adding rare outdoor space for a flat of this size.
Practical strengths include a very long lease (999 years), share of freehold tenure, low service charge at £400 per annum and mains gas central heating via boiler and radiators. The flat has been finished to a high standard throughout — herringbone-style wood flooring, contemporary fixtures and recessed lighting — so immediate move-in is realistic with minimal work required.
The property is compact at approximately 426 sq ft, so it suits a single occupant or couple rather than a family. As a lower‑ground apartment, some buyers should note the reduced privacy and lower‑level aspect compared with upper floors. Walls are original solid brick (no added insulation assumed), which may mean higher heating costs unless further insulation work is undertaken. Council tax band and EPC are currently to be confirmed.
Set back from the road in a very affluent SW18 area, the location offers excellent transport links (Southfields District Line nearby), strong local schools and fast broadband and mobile signal. This apartment combines period character, modern finishes and low running costs, presenting straightforward rental potential or a compact, stylish first home.
1 bedroom flat for sale in Wimbledon Park Road, London, SW18 — £525,000 • 1 bed • 1 bath • 585 ft²
1 bedroom apartment for sale in Sutherland Grove, London, SW18 — £360,000 • 1 bed • 1 bath • 495 ft²
1 bedroom apartment for sale in Replingham Road, London, SW18 — £400,000 • 1 bed • 1 bath • 689 ft²
1 bedroom apartment for sale in Beaumont Road, London, SW19 — £280,000 • 1 bed • 1 bath • 431 ft²
2 bedroom apartment for sale in Wimbledon Park Road, Southfields, SW18 — £600,000 • 2 bed • 1 bath • 904 ft²
2 bedroom apartment for sale in Wimbledon Park Road, SW18 — £675,000 • 2 bed • 2 bath • 724 ft²






























