**Property Highlights:**
- Spacious two-bedroom detached barn conversion
- Expansive outdoor space with approx. 1-acre private garden and additional separate 2.5-acre paddock
- Full planning permission granted for house extension and garage conversion into a holiday let
- Generous off-road parking area with detached garage
- Rural location with low crime rates and excellent mobile signal
- No onward chain, offering a quick buying process
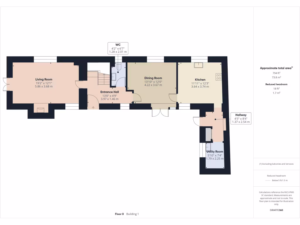
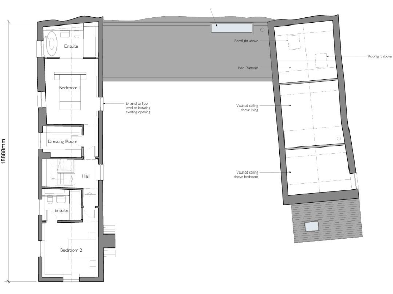
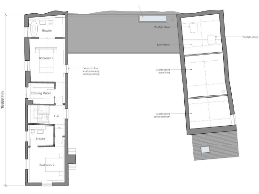
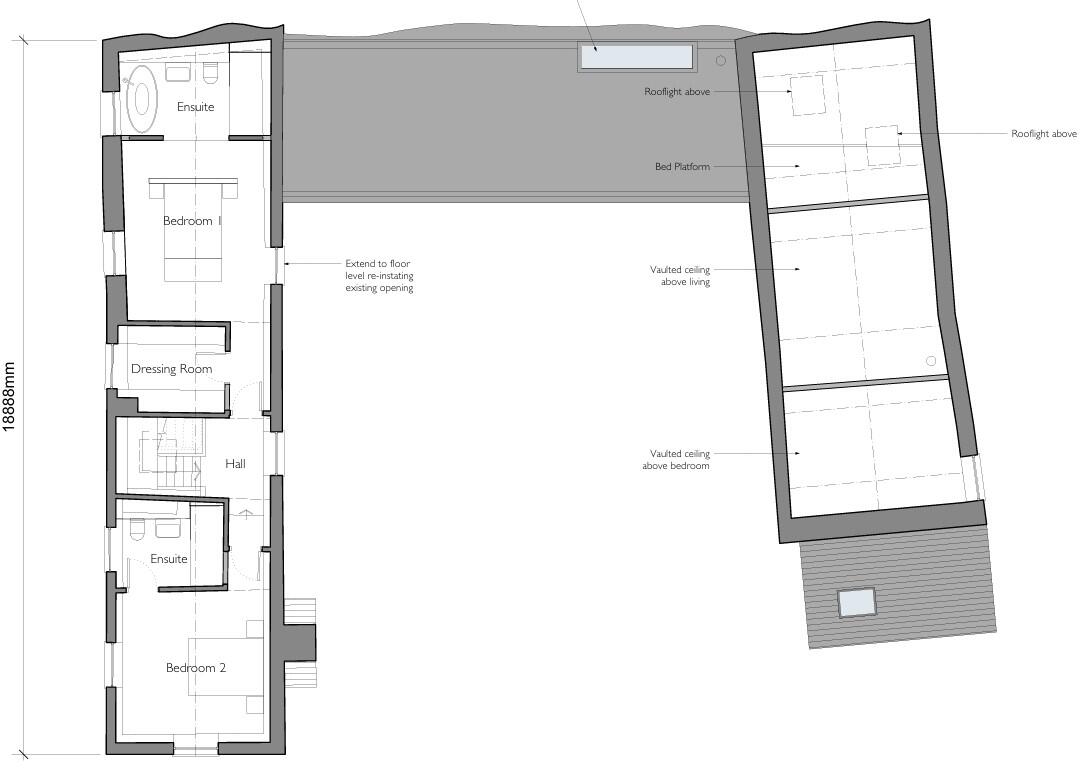
Embrace countryside living in this charming two-bedroom detached barn conversion, characterized by its rustic appeal and vast space. Inside, the home features a well-designed layout with a modern kitchen, separate dining room, and cozy living room, while the first floor hosts two double bedrooms, each with ensuite bathrooms. The beautifully landscaped garden offers a peaceful retreat, complete with a pond and sweeping driveway, ensuring privacy and tranquility.
This property presents exceptional development opportunities, with planning permission already in place for expansion of the main house and the conversion of the garage into a holiday let—ideal for investment or multi-generational living. Ideal for families and investors alike, it offers both comfort and future potential in an idyllic rural setting.
Newton St. Petrock provides easy access to surrounding market towns and local amenities, making this barn conversion not just a home, but a lifestyle choice. Don't miss out on this unique opportunity to create your dream property—schedule a viewing today!
3 bedroom barn conversion for sale in Stoney Cross, Bideford, EX39 — £650,000 • 3 bed • 2 bath • 2524 ft²
2 bedroom bungalow for sale in Littleham Court, Littleham, Bideford, EX39 — £345,000 • 2 bed • 2 bath • 979 ft²
4 bedroom detached house for sale in Pancrasweek, Holsworthy, Devon, EX22 — £350,000 • 4 bed • 1 bath • 1388 ft²
3 bedroom detached house for sale in Stibb Cross, Torrington, Devon, EX38 — £600,000 • 3 bed • 2 bath • 1577 ft²
4 bedroom bungalow for sale in Langtree, Torrington, Devon, EX38 — £850,000 • 4 bed • 3 bath • 2086 ft²
3 bedroom detached house for sale in Shebbear, Beaworthy, EX21 5RA, EX21 — £625,000 • 3 bed • 1 bath • 1311 ft²






























































































































































































