Fully let, low-maintenance income in affluent village location.
Gross income £35,100 per annum from six fully let tenancies
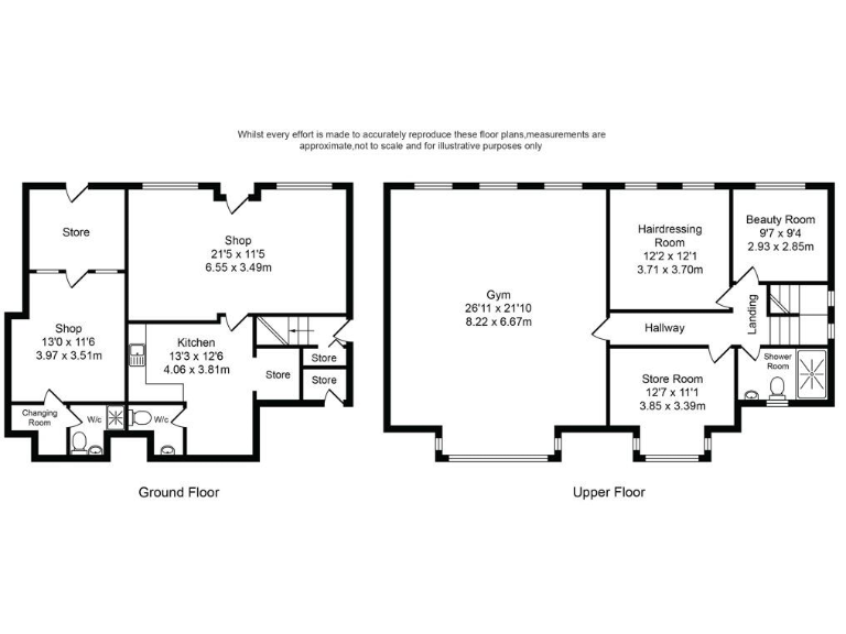
A fully let, low-maintenance mixed-use investment generating a gross income of £35,100 pa from six tenancies across retail, beauty and fitness sectors. The property occupies a prominent corner position in affluent Churchtown village, approximately 1.5 miles from Southport town centre, benefiting from strong footfall and road frontage.
The building combines two ground-floor retail units and a first-floor suite of four self-contained studios, each independently metered and separately assessed for business rates. First-floor tenants currently benefit from small business rates relief eligibility; the landlord meets first-floor outgoings, with estimated annual overheads of about £3,700.
Rents are currently concessionary versus the size and location, providing clear scope for reversionary rental uplift at review or renewal. The property is offered as a freehold investment (plus two long leasehold titles) with no VAT on purchase, making it suitable for SIPP and portfolio investors seeking diversified, tax-efficient income.
Notable practical points: the asset has modern finishes, secure buzzer entry, communal shower/WC and a reinforced gym floor, but plot space is small and off-street parking appears limited. Buyers should factor in the concessionary rental profile when assessing short-term yield versus medium-term growth potential.
Commercial property for sale in 96 Zetland Street And 52a &52b Hawkshead Street, Southport, Merseyside, PR9 — £250,000 • 1 bed • 1 bath • 1654 ft²
Commercial property for sale in 149 & 149a Roe Lane, Southport, Churchtown, Merseyside, PR9 — £175,000 • 1 bed • 1 bath • 1506 ft²
Commercial property for sale in 45 - 47 London Street, Southport, Merseyside, PR9 — £425,000 • 1 bed • 1 bath • 1544 ft²
Commercial property for sale in 199-201 Lord Street, Southport, Merseyside, PR8 — £325,000 • 1 bed • 1 bath • 2430 ft²
Office for sale in 6 & 8 Botanic Road, Southport, Churchtown, PR9 — £350,000 • 1 bed • 1 bath • 2674 ft²
Commercial property for sale in 2 Railway Road , Ormskirk, Lancashire, L39 — £279,950 • 1 bed • 1 bath • 2088 ft²










































