Turnkey period home with contemporary extension and a sunny rear garden.
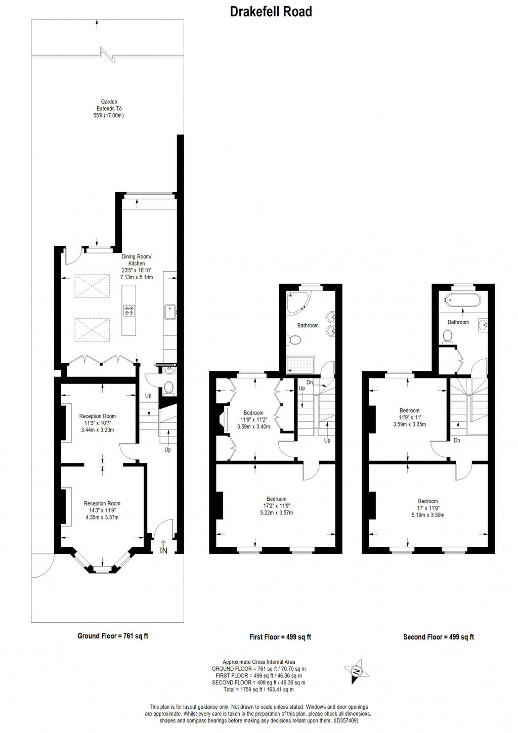
1,759 sq ft four-bedroom end-of-terrace, newly renovated throughout
A substantial four-bedroom end-of-terrace blending Victorian character with a contemporary, architect-designed rear extension. At 1,759 sq ft this newly renovated house delivers high ceilings, original bay windows and modern glazed living to the rear with exposed steelwork and underfloor heating.
The ground floor offers a formal bay-fronted reception and a second reception ideal for a study or library, while the 25ft-plus kitchen/dining/reception provides generous entertaining space, a fitted island and large-format tiles. Natural light floods through rooflights and large glazing, and the house benefits from smart storage solutions and side access to a south-facing garden.
Sleeping accommodation includes a large principal bedroom and three further double bedrooms across the upper floors; two contemporary bathrooms (including a freestanding bath) serve the household. The house sits within the Telegraph Hill Conservation Area and is an easy five-minute walk to Brockley Station with additional links from Nunhead.
Practical positives include freehold tenure, excellent mobile signal and fast broadband for remote working. Note the plot is relatively small and the area records average crime and deprivation statistics; buyers seeking a larger outdoor space should consider this. Overall, the property suits families wanting period charm with turnkey contemporary living close to local schools, cafes and transport.
4 bedroom end of terrace house for sale in Drakefell Rd, Brockley SE4 — £1,299,950 • 4 bed • 2 bath • 1759 ft²
4 bedroom end of terrace house for sale in Malpas Road, Brockley, London, SE4 — £1,500,000 • 4 bed • 2 bath • 2046 ft²
4 bedroom terraced house for sale in Upper Brockley Road, London, SE4 — £1,475,000 • 4 bed • 2 bath • 1895 ft²
3 bedroom terraced house for sale in Howson Road, Brockley, London, SE4 — £900,000 • 3 bed • 2 bath • 1356 ft²
4 bedroom semi-detached house for sale in Avignon Road, London, SE4 — £1,100,000 • 4 bed • 2 bath • 1227 ft²
4 bedroom terraced house for sale in Musgrove Road, New Cross, London, SE14 — £1,500,000 • 4 bed • 2 bath • 2519 ft²






















































































































