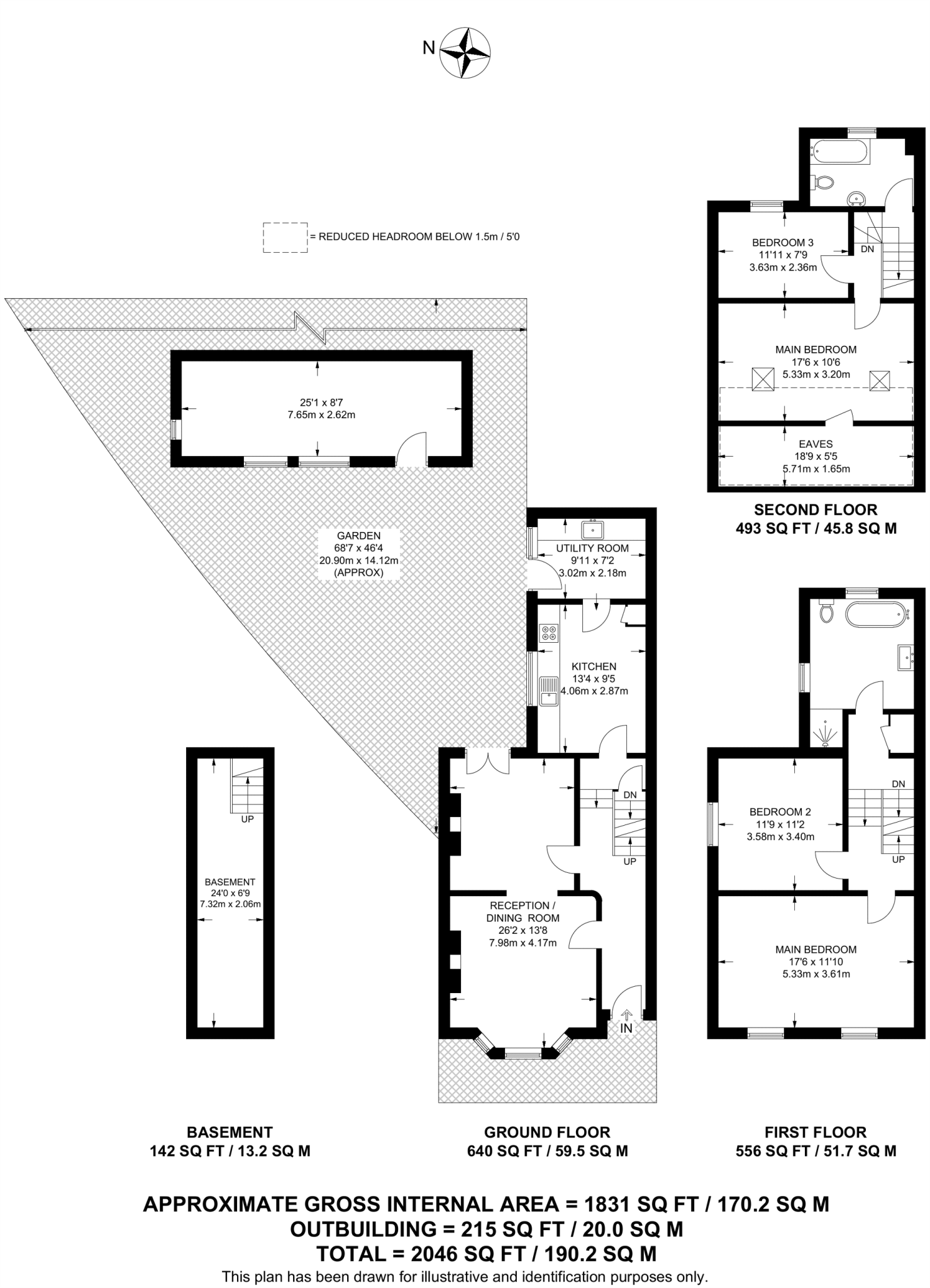
Four bedrooms, big garden and scope to extend for growing families.
Large freehold house, approx. 2,046 sq ft
This handsome four-bedroom end-of-terrace offers three floors of newly refurbished living space arranged around a bright double reception and a large private garden. At around 2,046 sq ft, rooms are generous with high ceilings and period character alongside contemporary finishes and underfloor heating across the ground floor.
The house will suit growing families seeking space and strong local schools — several highly rated primaries and secondaries lie close by — plus easy connections via Brockley and New Cross. There is scope to extend further subject to planning (STPP), making the property a good fit for buyers wanting long-term growth or extra living space.
Practical points are straightforward: freehold tenure, fast broadband and excellent mobile signal. Be aware the local crime rate is above average and the setting is an inner‑city, cosmopolitan area; buyers should factor neighbourhood considerations into their plans. Overall, this is a spacious, characterful home ready to move into and capable of significant future uplift.
4 bedroom end of terrace house for sale in Drakefell Road, Brockley, SE4 — £1,275,000 • 4 bed • 2 bath • 1759 ft²
4 bedroom end of terrace house for sale in Overcliff Road, Lewisham, London, SE13 — £1,100,000 • 4 bed • 1 bath • 1571 ft²
3 bedroom terraced house for sale in Howson Road, Brockley, London, SE4 — £900,000 • 3 bed • 2 bath • 1356 ft²
4 bedroom terraced house for sale in Brockley Grove, London, SE4 — £875,000 • 4 bed • 2 bath • 1416 ft²
6 bedroom terraced house for sale in Lewisham Way, London, SE14 — £1,650,000 • 6 bed • 3 bath • 2777 ft²
4 bedroom semi-detached house for sale in Avignon Road, London, SE4 — £1,100,000 • 4 bed • 2 bath • 1227 ft²






































































































































































