Chain-free extended terraced home with three double bedrooms and a 49ft rear garden..
No onward chain — ready for a quick sale
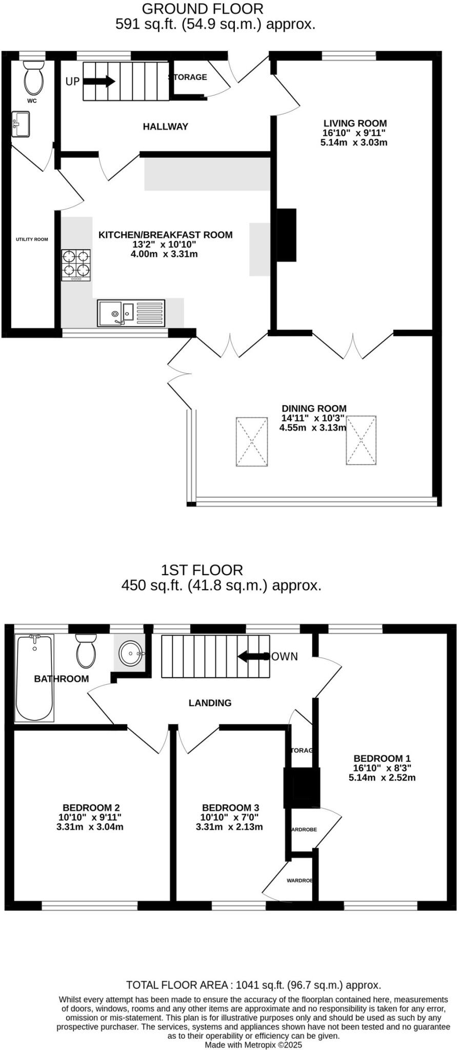
This extended three-bedroom mid-terrace offers practical family living on Doddington Road with no onward chain. The property’s layout includes two reception rooms, a modern kitchen/breakfast area, downstairs W/C and a useful utility, arranged over an average-sized footprint of about 1,041 sq ft. The rear garden (approx 49ft x 26ft) provides a private outdoor space with patio, decking and lawn for children and weekend entertaining.
Bedrooms are all doubles and the family bathroom serves the first floor, making the home a straightforward choice for growing families. The house is freehold, double-glazed and heated by a mains gas boiler with radiators. Local amenities, good primary and secondary schools (including Rainham Mark Grammar) and strong transport links make this location convenient for commuters and school runs.
Buyers should note some maintenance is needed: there is a damp-stained ceiling visible in the living room and general wear-and-tear consistent with a 1930s mid-terrace that has been extended. The plot is relatively small and there is no garage. The property sits in a wider area classed as hard-pressed with higher deprivation, though crime is reported as low. These factors are important for longer-term investment planning or resale expectations.
Offered with a guide price of £300,000–£325,000 and sold chain-free, the house is best suited to families seeking ready-to-live-in accommodation with potential to personalise and upgrade. Its combination of location, size and straightforward layout makes it an accessible option for first-time movers up or those needing more space without a large garden maintenance commitment.
3 bedroom terraced house for sale in Conyers Walk, Parkwood, Gillingham, ME8 — £290,000 • 3 bed • 1 bath • 812 ft²
3 bedroom end of terrace house for sale in Brabourne Avenue, Gillingham, Kent, ME8 — £290,000 • 3 bed • 1 bath • 913 ft²
3 bedroom semi-detached house for sale in Lyminge Close, Twydall, Rainham, Kent, ME8 — £300,000 • 3 bed • 2 bath • 946 ft²
3 bedroom terraced house for sale in Wheatcroft Grove, Rainham, Gillingham, ME8 — £300,000 • 3 bed • 1 bath • 729 ft²
3 bedroom terraced house for sale in Brenchley Road, Twydall, Kent, ME8 — £280,000 • 3 bed • 1 bath • 1114 ft²
3 bedroom terraced house for sale in Winchester Way, Rainham, Gillingham, ME8 — £260,000 • 3 bed • 1 bath • 848 ft²










































