Move-in ready family home with garage, driveway and west-facing garden.
Three-bedroom extended mid-terrace, newly renovated interior
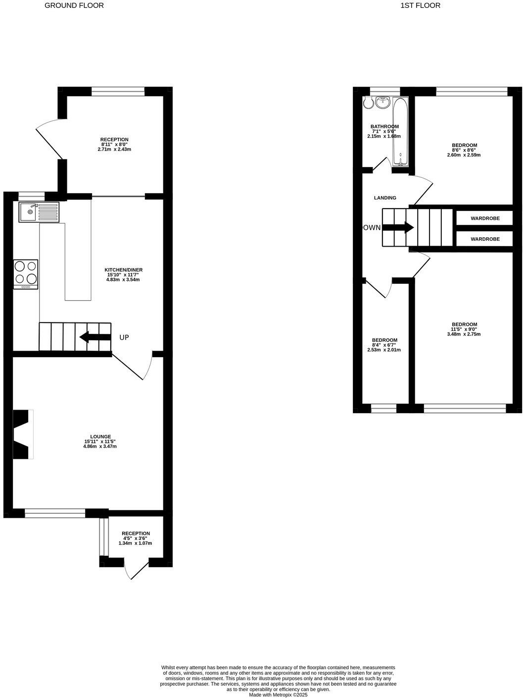
A bright, recently renovated three-bedroom mid-terrace offering practical family living in a well-established Rainham suburb. The extended footprint creates a roomy living area and a contemporary kitchen/diner that opens onto a low-maintenance, west-facing garden — ideal for afternoon sun and easy outdoor living.
The home benefits from sensible everyday features: detached garage, driveway parking for one car, good local schools, and quick access to public transport and the M2 for commuters. At around 729 sq ft, the layout is efficient, with three well-proportioned bedrooms and a modern family bathroom that suit a growing household or first-time buyers wanting extra space.
Buyers should note the property sits on a small plot and is modest in overall size; garden space and internal room sizes reflect that. There is a single bathroom and driveway parking for one vehicle, which may be limiting for larger families or multiple-car households. The house is freehold and chain-free, newly renovated and ready to move into, so immediate occupation is straightforward.
This home is best for families or first-time buyers seeking a low-maintenance, well-connected property with modern finishes and good local amenities. It presents a sensible, move-in-ready option with realistic expectations around plot size and parking.
3 bedroom semi-detached house for sale in Maidstone Road, Rainham, Kent, ME8 — £350,000 • 3 bed • 2 bath • 1198 ft²
3 bedroom terraced house for sale in Ploughmans Way, Rainham, Gillingham, Kent, ME8 — £320,000 • 3 bed • 1 bath • 744 ft²
3 bedroom end of terrace house for sale in Mardale Close, Rainham, Gillingham, Kent, ME8 — £310,000 • 3 bed • 1 bath • 872 ft²
3 bedroom terraced house for sale in Granville Road, Gillingham, Kent, ME7 — £290,000 • 3 bed • 2 bath • 1129 ft²
4 bedroom terraced house for sale in Spacious 3, 4 or 5 bedroom Townhouse close to Rainham Town Centre, ME8 — £280,000 • 4 bed • 1 bath • 922 ft²
3 bedroom terraced house for sale in Macklands Way, Rainham, Gillingham, Kent, ME8 — £325,000 • 3 bed • 2 bath • 969 ft²


























































