**Standout Features:**
- Spacious B listed terraced villa within a conservation area
- Four bedrooms with potential for additional attic rooms
- Generous rear garden grounds and a summer house with power and light
- Cozy modern living room with electric fire
- Ideal location on High Street with close proximity to local amenities
**Concerns:**
- Listed status may pose renovation difficulties
- Average broadband and mobile signal coverage
- Area classification indicates it is very deprived
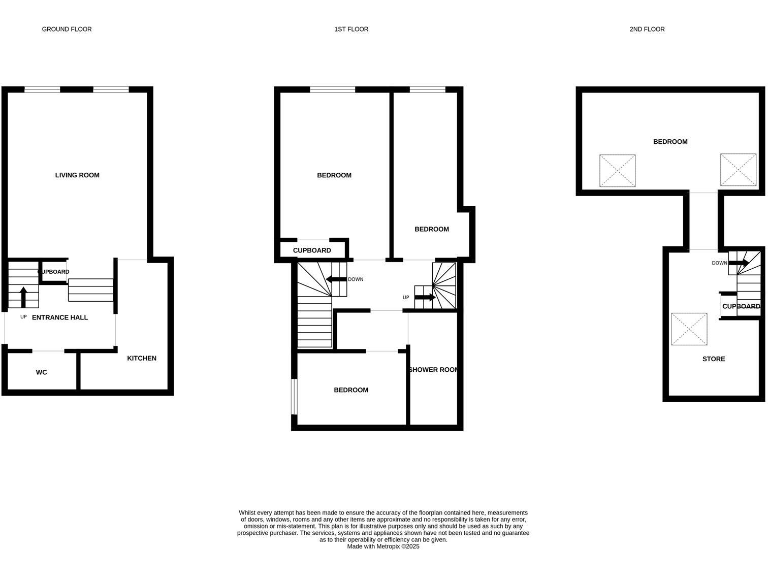
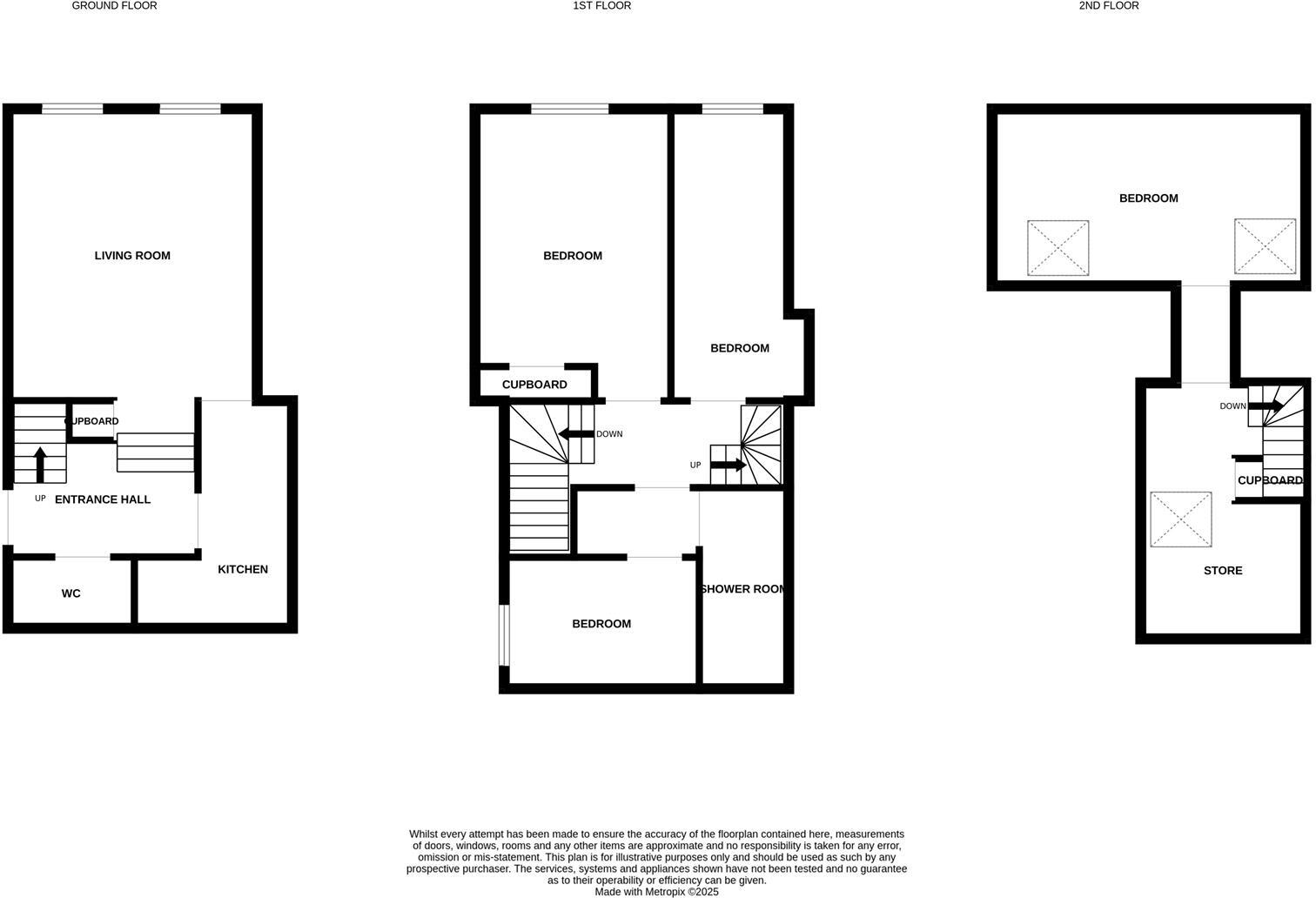
Discover your dream home at 193 High Street, a charming B listed terraced villa situated in a scenic conservation area. This spacious four-bedroom property boasts a large rear garden and a delightful summer house, perfect for hosting or relaxing. Inside, enjoy a cozy lounge with modern finishes, a fitted kitchen equipped with essential appliances, and essential amenities including a WC and convenient storage.
Ideal for investors, families, or first-time buyers, this home offers a unique opportunity to embrace the character of a traditional property while giving you the potential for future renovations. While the listed status may present some challenges, the vibrant location on High Street and its proximity to local amenities provide an exceptional lifestyle choice. Don’t miss this chance to own a piece of history with ample outdoor space—this opportunity won’t last long!
3 bedroom terraced house for sale in 1 High Street, Newburgh, KY14 6AH, KY14 — £170,000 • 3 bed • 2 bath • 1119 ft²
4 bedroom end of terrace house for sale in 75 Cash Feus, Strathmiglo, KY14 — £330,000 • 4 bed • 2 bath • 2023 ft²
4 bedroom detached house for sale in 7 Edenbank Road, Cupar, KY15 — £335,000 • 4 bed • 2 bath • 1248 ft²
2 bedroom terraced house for sale in West Port, Falkland, Cupar, KY15 — £295,000 • 2 bed • 1 bath • 1336 ft²
4 bedroom detached house for sale in 20 Monkstown, Ladybank, KY15 — £325,000 • 4 bed • 3 bath • 1528 ft²
4 bedroom terraced house for sale in Upper Greens, Auchtermuchty, Fife, KY14 7BX, KY14 — £269,950 • 4 bed • 3 bath










































































