Spacious period family house with garden, garage and conservation-area charm.
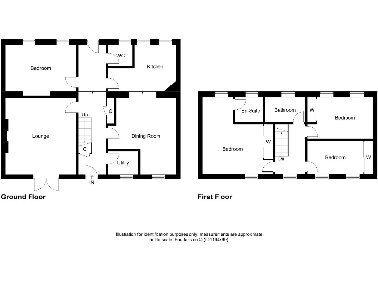
Four bedrooms including ground-floor bedroom and large master with en-suite
A substantial four-bedroom C-listed terraced house located in the Conservation Area of Auchtermuchty, offered freehold at £269,950. The property combines traditional stone character—exposed beams, ornate fireplaces and sash-and-case windows—with generous family accommodation over two storeys, including a large master bedroom with en-suite, a ground-floor bedroom, and an open-plan kitchen/dining space.
Practical benefits include a south-facing paved garden overlooking the Calsey burn, off-street parking and a garage with power and light, gas central heating and good mobile signal. The lounge has French doors to the garden and the layout provides flexible living, useful storage and a separate utility room and WC.
Important considerations: the house is C-listed and within a Conservation Area, which will restrict alterations and may make repairs or upgrading more complex and costly. Broadband speeds are noted as slow locally. Council Tax and EPC indicate above-average running costs (Council Tax band E, EPC band D). The wider area shows higher levels of deprivation, which may influence resale or rental demand.
This property will suit a family or buyer who values period character and a village location close to local amenities, and who is prepared for listed-building constraints and potential conservation-led maintenance. Viewing is recommended to appreciate the scale, setting and character of the house in person.
3 bedroom terraced house for sale in Burnside, Auchtermuchty, KY14 7AL, KY14 — £214,995 • 3 bed • 2 bath
3 bedroom link detached house for sale in Dunmore House, Crosshills, Auchtermuchty, Fife, KY14 7AX, KY14 — £269,950 • 3 bed • 2 bath
5 bedroom detached house for sale in Croft, Auchtermuchty, Fife, KY14 7AS, KY14 — £264,995 • 5 bed • 2 bath • 2001 ft²
2 bedroom terraced house for sale in Burnside, Auchtermuchty, Fife, KY14 7AJ, KY14 — £114,950 • 2 bed • 1 bath
4 bedroom terraced house for sale in 193 High Street, Newburgh, KY14 — £135,000 • 4 bed • 2 bath • 1001 ft²
3 bedroom terraced house for sale in Mournipea, Auchtermuchty, Cupar, KY14 — £200,000 • 3 bed • 1 bath • 913 ft²










































































































