EH8 7DF - 3 bedroom flat for sale in 8 Wolseley Crescent, Willowbrae,…

View on Property Piper

3 bedroom flat for sale in 8 Wolseley Crescent, Willowbrae, Edinburgh, EH8 7DF, EH8

Summary - 8, WOLSELEY CRESCENT, EDINBURGH EH8 7DF

3 bed 1 bath Flat

**Key Features:**

- Charming Victorian-style lower villa on Wolseley Crescent
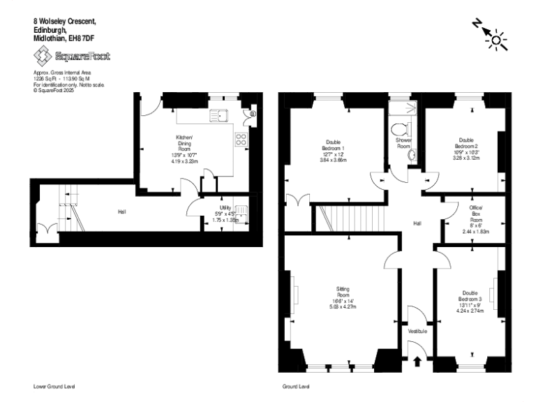
- Three double bedrooms, potential box room for an office
- Bright living room with high ceilings and gas fireplace
- Spacious kitchen/dining area with rear garden access
- Private front patio and well-maintained rear garden
- Excellent local amenities and convenient city access
- Unrestricted on-street parking
- Freehold tenure; gas central heating and double glazing
- Area has mixture of well-qualified professionals and amenities

**Summary:**
Discover comfort and character in this charming three-bedroom Victorian lower villa, nestled on the quiet streets of Wolseley Crescent, Willowbrae. This well-presented property features spacious living areas with high ceilings and original period details, including a bright living room with a gas fireplace, perfect for cozy gatherings. The fitted dining kitchen offers direct access to a generous rear garden, ideal for outdoor relaxation and entertaining. With three double bedrooms and an adaptable box room, there’s ample space for family living or a home office setup.

While the area showcases beautiful period architecture, it does present as a more deprived location, which may influence lifestyle and investment considerations. Nonetheless, it boasts excellent local amenities, schools nearby, and is a short distance from the city center, making it an appealing choice for families and professionals alike. Potential buyers would benefit from the freehold tenure and unrestricted on-street parking, ensuring long-term value in this desirable neighborhood. Act quickly—properties with this unique character and potential do not last long on the market!

Property Details

Brochure Descriptions

Image Descriptions

Rooms

Textual Property Features

Detected Visual Features

Nearest Bars And Restaurants

,,,,}

Nearest General Shops

,,}

Nearest Grocery shops

,,}

Nearest Supermarkets

,,}

Nearest Religious buildings

,,}

Nearest Medical buildings

,,,}

Nearest Airports

}

Nearest Leisure Facilities

,,,,}

Nearest Tourist attractions

,,}

Nearest Train stations

,,,,}

Nearest Bus stations and stops

,,,,}

Nearest Hotels

,,}

Tags

Local Market Stats

AirBnB Data

Similar Properties

Meta

High Res Images

Compatible Images

Low res Images

Thumbnails

Raw Images

High Res Floorplan Images

Compatible Floorplan Images

Low res Floorplan Images

FloorplanImages Thumbnail

Raw Floorplan Images