Four-bedroom family home with private terrace and allocated parking.
Victorian townhouse conversion with high ceilings and period features
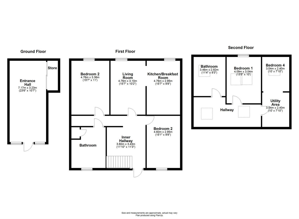
This converted Victorian townhouse offers roomy, flexible living across multiple levels, making it well suited to growing families who want character close to Macclesfield town centre and the station. The layout includes a private entrance, an open-plan living and kitchen space, a private terrace and four bedrooms — useful for children, guests or a home office.
Built around 1900 and set in maintained communal grounds, the property retains period features such as high ceilings, stained glass and a feature stairwell that add charm and atmosphere. Practical benefits include allocated off-street parking, an exceptionally long lease (975 years) and no flood risk.
Buyers should note some running-cost and fabric considerations: heating is by electric storage heaters, which can be more expensive than gas systems, and the building’s solid brick walls are likely uninsulated, so retrofit insulation may be needed. Broadband speeds are reported slow. The property is leasehold with an average service charge of £1,560 per year.
Overall this is a spacious, characterful townhouse that combines period style with contemporary living spaces and strong local amenities. It will particularly appeal to families seeking good schools and easy transport links, or buyers willing to invest in improving energy performance and connectivity.
3 bedroom terraced house for sale in Union Road, Macclesfield, SK11 7BN, SK11 — £350,000 • 3 bed • 2 bath • 1147 ft²
4 bedroom terraced house for sale in St. Georges Street, SK11 6TG, SK11 — £392,500 • 4 bed • 3 bath • 1313 ft²
3 bedroom house for sale in Buxton Road, Macclesfield, SK11 — £450,000 • 3 bed • 1 bath • 1529 ft²
4 bedroom terraced house for sale in Eastgate, Macclesfield, SK10 — £550,000 • 4 bed • 4 bath • 2196 ft²
3 bedroom terraced house for sale in St. Georges Street, Macclesfield, SK11 — £229,950 • 3 bed • 2 bath • 1012 ft²
2 bedroom terraced house for sale in Roe Street, Macclesfield, SK11 — £225,000 • 2 bed • 2 bath • 1206 ft²


























































































