Move-in ready semi with landscaped garden and driveway parking.
Chain free and freehold ownership
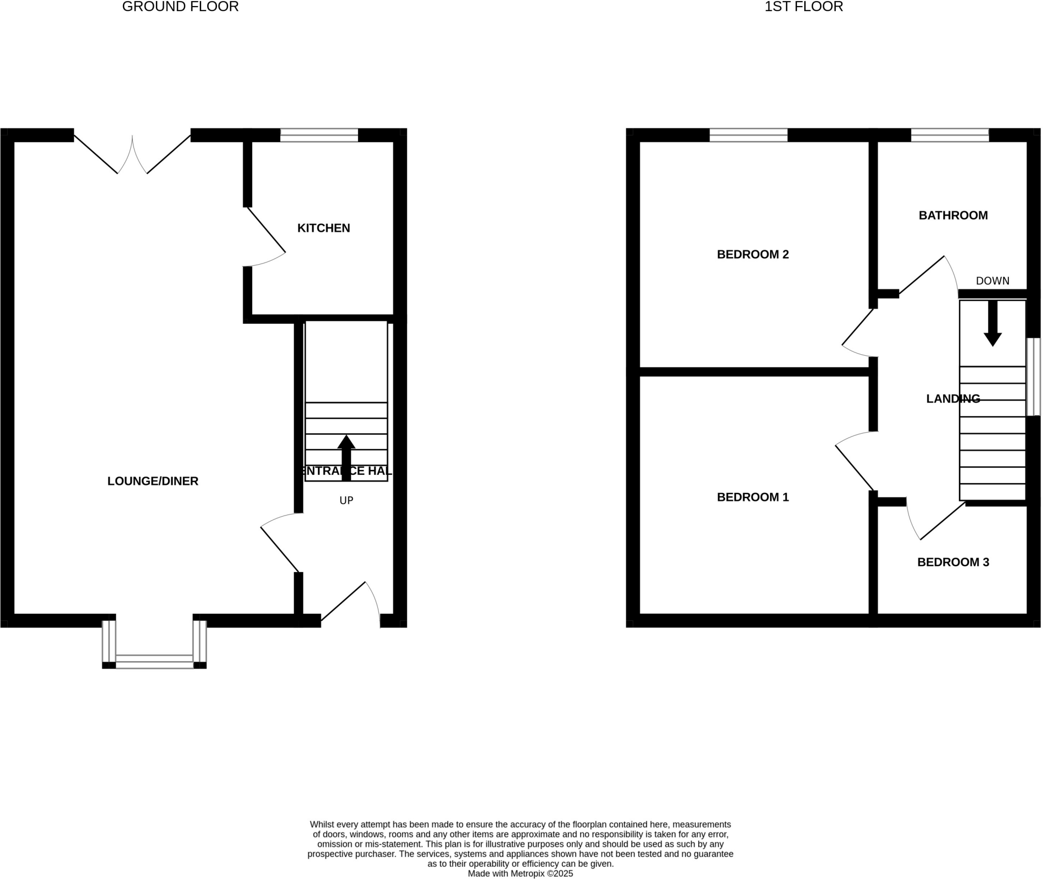
This tidy three-bedroom semi-detached house on a quiet cul-de-sac is offered chain free and ready to move into. A long, bright lounge-through-diner with bay window and French doors provides generous entertaining space, while recent double glazing and a new boiler reduce short-term maintenance concerns.
The fitted kitchen is compact but equipped with integrated appliances and space for utilities; the rear landscaped garden and driveway with off-street parking add practical outdoor living and storage. The house is freehold with council tax band B and sits in a popular suburban close convenient for local amenities and transport links.
Practical buyers should note the plot and overall footprint are modest: the kitchen is small for the size of the lounge, and the third bedroom is best suited as a single bedroom, home office or nursery. There is a single family bathroom. The area’s schools are mixed in performance, so check specific catchments if schooling is a priority.
Overall this property will appeal to first-time buyers or downsizers seeking move-in ready accommodation with a large reception room, low immediate maintenance, and sensible outside space. Early viewing is recommended to appreciate the layout and proportions in person.
3 bedroom semi-detached house for sale in Rolt Crescent, Middlewich, CW10 — £250,000 • 3 bed • 1 bath • 1012 ft²
3 bedroom semi-detached house for sale in Byron Close, Middlewich, CW10 — £240,000 • 3 bed • 2 bath • 811 ft²
3 bedroom detached house for sale in Lostock Drive, Middlewich, CW10 — £270,000 • 3 bed • 2 bath • 884 ft²
2 bedroom semi-detached house for sale in Firdale Park, Northwich, CW8 — £185,000 • 2 bed • 1 bath • 471 ft²
3 bedroom semi-detached house for sale in Bond Street, Northwich, CW8 — £210,000 • 3 bed • 1 bath • 840 ft²
3 bedroom semi-detached house for sale in Lambourn Drive, Leighton, Crewe, CW1 — £210,000 • 3 bed • 2 bath • 618 ft²






















































































































































