Compact freehold home with driveway and private garden, ideal for first buyers..
Chain-free end-of-cul-de-sac location with quiet outlook
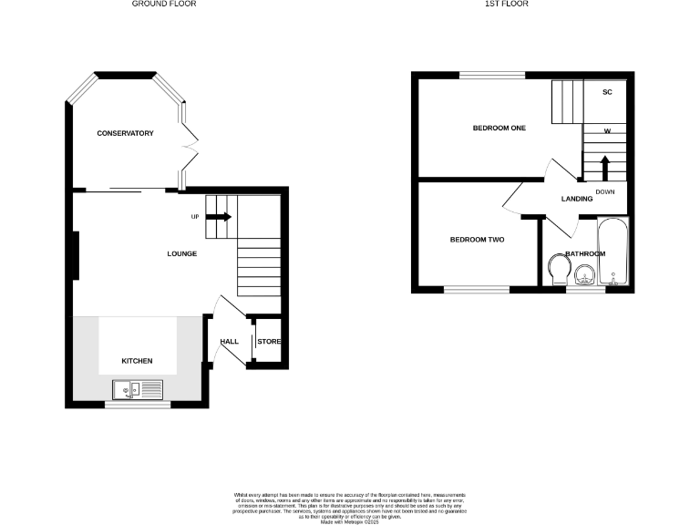
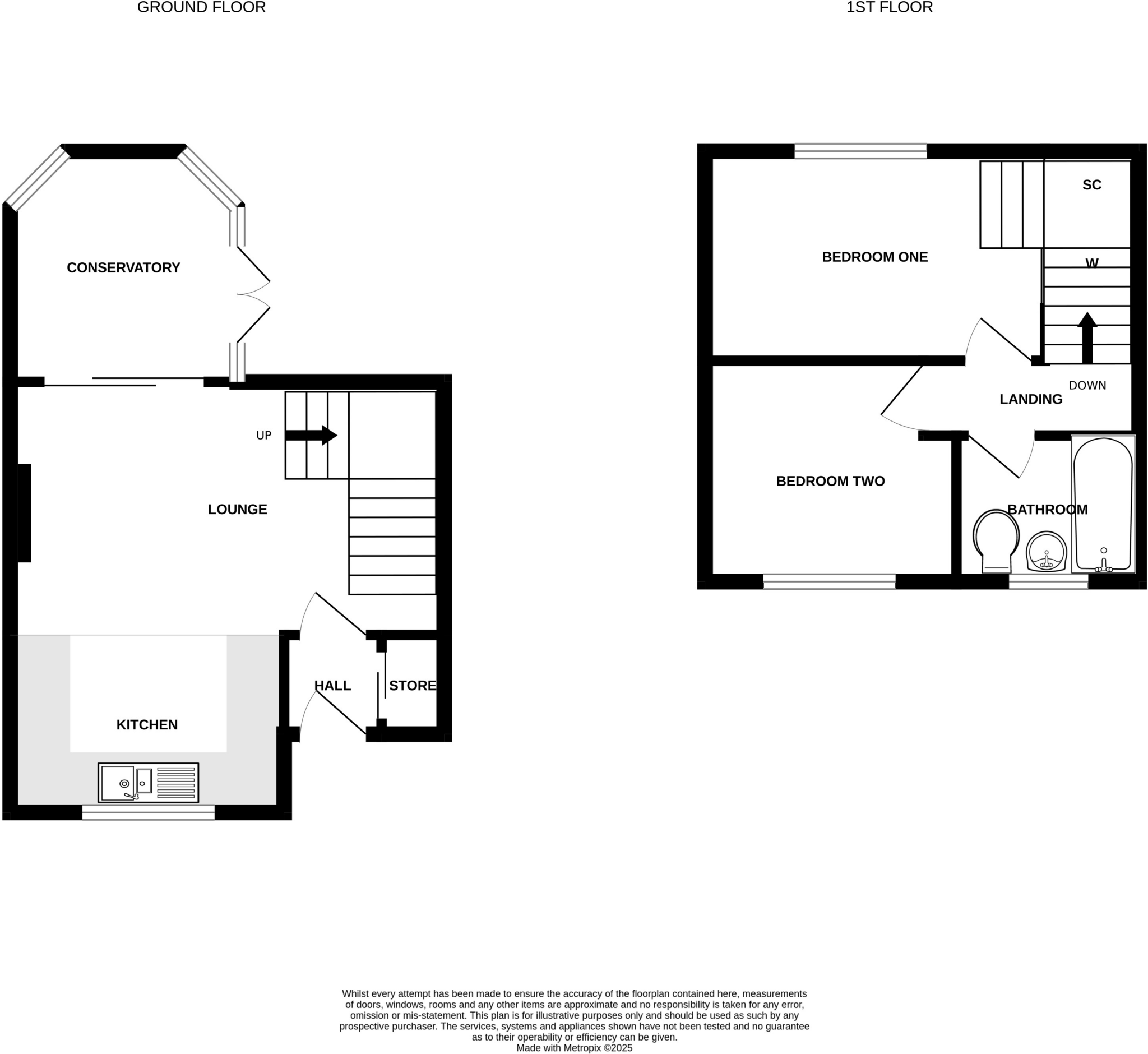
This end-mews two-bedroom house is offered chain-free and ready for immediate occupation. Set at the end of a quiet cul-de-sac, the home features a comfortable lounge, adjoining conservatory and a compact fitted kitchen — practical, low-maintenance living for a first purchase or downsizing move.
The layout is straightforward: two first-floor bedrooms and a family bathroom above a ground-floor living room that opens into the conservatory and rear garden. A driveway provides off-street parking and the small, enclosed garden offers private outdoor space without heavy upkeep. The property is freehold and in council tax band B.
Presentation is neat and tidy but the overall internal footprint is modest (approx. 471 sq ft). There is scope to update the kitchen and bathroom to add value, and modest cosmetic work could improve kerb appeal. No flooding risk is reported; the area benefits from low crime, fast broadband and good local amenities.
Viewing is recommended to appreciate the practical layout and quiet setting. This home will particularly suit first-time buyers, downsizers or investors seeking a compact, low-maintenance property with immediate rental or occupancy potential.
2 bedroom end of terrace house for sale in Meadow View, Middlewich, CW10 — £160,000 • 2 bed • 1 bath • 559 ft²
2 bedroom terraced house for sale in Perfectly presented end terraced property with period charm and generous rear garden, CW9 — £240,000 • 2 bed • 1 bath • 1134 ft²
2 bedroom terraced house for sale in Bowling Green Court, Northwich, CW8 — £160,000 • 2 bed • 1 bath • 688 ft²
3 bedroom terraced house for sale in Gordale Close, Winnington, Northwich, Cheshire, CW8 — £210,000 • 3 bed • 1 bath • 975 ft²
2 bedroom semi-detached house for sale in , West Avenue, Rudheath, CW9 — £230,000 • 2 bed • 1 bath • 1012 ft²
2 bedroom end of terrace house for sale in Meadow View, Middlewich, CW10 — £190,000 • 2 bed • 1 bath • 701 ft²


















































