Generous rooms, sunny walled garden and scope to add an ensuite.
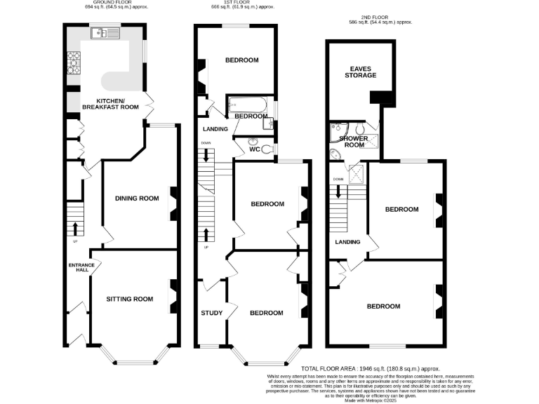
Six bedrooms over three floors, large principal rooms and tall ceilings
This substantial six-bedroom semi-detached house in Old Town offers generous, characterful family accommodation across three floors. Tall ceilings, bay windows and original fireplaces give rooms presence, while a refitted open-plan kitchen/breakfast room opens directly onto a sunny south-westerly walled garden — an ideal space for children and outdoor entertaining.
The layout suits extended or multigenerational families: three double bedrooms on the first floor, two further doubles on the second floor and a ground-floor study/bedroom. The principal bedroom has a sealed door into the adjoining study, offering straightforward scope to create an ensuite if required. Two modern shower/bathrooms plus a separate WC provide practical facilities for busy households.
The house has been maintained and improved over the years but there are practical considerations: an EPC rating of E signals above-average running costs and potential for energy-efficiency upgrades. The plot is modest in size and the property occupies a terraced position set back behind a communal walkway, so outdoor space is well-kept but not extensive.
Situated close to Motcombe Village amenities, good local schools and green spaces, this home balances period character with family-friendly living. Buyers seeking spacious rooms, original detail and garden enjoyment near Eastbourne’s Old Town will find strong appeal, while those prioritising top-tier energy efficiency should allow for improvements.
6 bedroom terraced house for sale in St Marys Road, Old Town, Eastbourne, East Sussex, BN21 — £525,000 • 6 bed • 2 bath • 1558 ft²
4 bedroom end of terrace house for sale in Victoria Drive, Old Town, Eastbourne, East Sussex, BN20 — £585,000 • 4 bed • 2 bath • 1752 ft²
4 bedroom semi-detached house for sale in Milton Road, Eastbourne, BN21 — £660,000 • 4 bed • 3 bath • 1940 ft²
6 bedroom semi-detached house for sale in Willingdon Road, Eastbourne, BN21 — £475,000 • 6 bed • 2 bath • 2907 ft²
4 bedroom terraced house for sale in Gore Park Road, Eastbourne, BN21 — £475,000 • 4 bed • 1 bath • 1218 ft²
4 bedroom semi-detached house for sale in Charleston Road, Eastbourne, BN21 — £625,000 • 4 bed • 1 bath • 1593 ft²






















































































































