Ready-to-move bungalow with garden and part-exchange option for over-55s.
40'x20' Omar Newmarket detached park home
Two double bedrooms; en suite to master and family bathroom
Modern kitchen, bright living room, low-maintenance interior
Fenced garden with shed; pets considered (one per home)
Part‑exchange available; immediate occupancy possible
Virtual freehold — home leased on land; may affect mortgageability
Ground rent £2,136 pa and site fee £178/month (notedly high)
Medium flood risk; area shows higher deprivation indicators
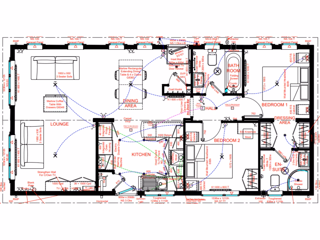
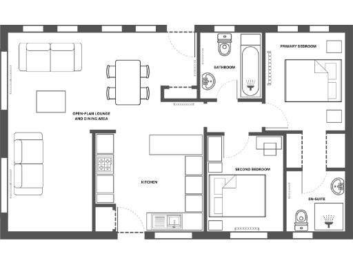
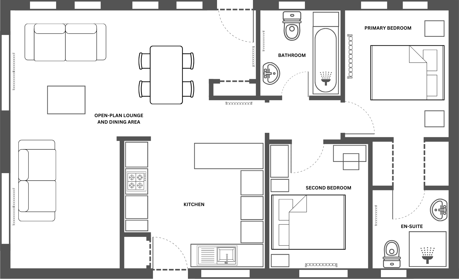
This modern 40'x20' Omar Newmarket park home offers low‑maintenance, single‑storey living designed for over‑55s. The layout includes a bright living room, contemporary kitchen, two double bedrooms, an en suite to the master and a separate family bathroom — all within an average-sized footprint of about 800 sq ft. The private fenced garden comes with a shed and is easy to manage.
The park is an established, well-planned retirement community set beside open recreational land with a friendly, communal atmosphere. Local amenities in Thorne are within walking distance, with good bus links and nearby rail stations for wider travel. Pets are considered (one per home), and immediate occupancy is available; part-exchange is offered for a smooth move.
Important drawbacks are factual and should be noted: the home sits on a virtual freehold (you buy the home but lease the land), which commonly limits mortgage options and may require specialist lending or cash purchase. Ground rent is high at £2,136 per year; there is also a site fee of £178 per month. The property sits in a generally deprived area with average crime and broadband/mobile signal, and it has a medium flood risk — buyers should obtain independent advice on these points.
Overall this property will suit someone seeking a comfortable, contemporary bungalow in a sociable retirement park who prioritises easy upkeep and community living, and who understands the financial and legal implications of park home tenure and ongoing site charges.
2 bedroom park home for sale in Palm grove court, Thorne, Doncaster, DN8 — £62,500 • 2 bed • 1 bath
3 bedroom park home for sale in Palm Grove Court, Thorne, Doncaster, DN8 — £80,000 • 3 bed • 1 bath • 874 ft²
1 bedroom park home for sale in Almholme Lane, Arksey, Doncaster, DN5 — £60,000 • 1 bed • 1 bath • 384 ft²
1 bedroom mobile home for sale in Haywagon Park, Station Road, Adwick Le Street, DN6 — £85,000 • 1 bed • 1 bath • 452 ft²
2 bedroom mobile home for sale in Haywagon Park, Adwick le street , , DN6 — £78,000 • 2 bed • 1 bath • 603 ft²
1 bedroom park home for sale in Redhouse Park, Hatfield Woodhouse, Doncaster, DN7 — £60,000 • 1 bed • 1 bath






































































































