Freehold one-bedroom with strong rental income potential in South Cliff.
Private ground-floor flat with own entrance and private garden
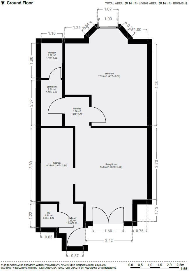
A large one-bedroom ground-floor flat with private access and garden, offered freehold in the South Cliff area. The flat already produces rental income of £8,100 per year, giving a strong gross yield of about 9.5% at the asking price of £85,000 — a clear draw for buy-to-let buyers or investors seeking immediate income.
Rooms are generously proportioned: a very large lounge, a double bedroom that can accommodate a study area, a modern galley kitchen and a bright shower room. The property benefits from its own entrance, private rear garden and double glazing installed after 2002, making it comfortable and straightforward to let or occupy.
Buyers should note a number of practical issues: heating is by electric room heaters (no central system), the solid brick walls are assumed to have no insulation, and the rear outbuildings and garden need some maintenance. EPC D and the mainly electric heating will influence running costs and any future improvement plans.
This flat suits an investor looking for immediate rental return or a first-time buyer wanting private outdoor space without a communal stair. The freehold tenure is unusual and helpful; however, expect to budget for targeted upgrades (insulation, heating improvements, and garden/outbuilding repair) to improve efficiency and long-term value.
2 bedroom apartment for sale in Albion Road, Scarborough, YO11 — £135,000 • 2 bed • 2 bath • 905 ft²
2 bedroom flat for sale in Grosvenor Road, Scarborough, North Yorkshire, YO11 — £120,000 • 2 bed • 1 bath • 786 ft²
1 bedroom apartment for sale in Grosvenor Crescent, Scarborough, North Yorkshire, YO11 — £120,000 • 1 bed • 1 bath • 788 ft²
1 bedroom flat for sale in Flat 1, 6 All Saints Road, YO12 — £69,950 • 1 bed • 1 bath • 377 ft²
1 bedroom flat for sale in Esplanade Gardens, Scarborough, YO11 — £95,000 • 1 bed • 1 bath • 540 ft²
1 bedroom flat for sale in South Street, Scarborough, North Yorkshire, YO11 — £65,000 • 1 bed • 1 bath


































