Affordable starter apartment close to local shops and transport links.
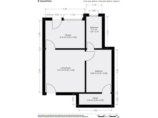
- Ground-floor one-bedroom flat with own street entrance
- Compact internal area around 35 m² (377 sq ft)
- Separate lounge, kitchen, bedroom, bathroom, plus storage cupboard
- Long lease: 961 years remaining
- Service charge about £1,120 per year
- Area classified as deprived; crime levels reported as high
- Excellent mobile signal and fast broadband speeds
- Minimal outdoor space; limited street views
A ground-floor one-bedroom apartment with its own street-level entrance, presented in tidy decorative order and ready to move into. The compact layout includes a separate living room, fitted kitchen, bedroom with built-in storage, and a modern bathroom — practical for single occupants or a buy-to-let.
The flat benefits from long leasehold security (961 years), double glazing and modern laminate flooring throughout. Broadband speeds are fast and mobile signal is excellent, making the property convenient for working-from-home or digitally connected tenants. Local amenities and public transport are within walking distance around Falsgrave Road.
Important considerations: the accommodation is small at about 35 m² (377 sq ft) and outdoor/garden space is minimal. The area records relatively high crime and is classified as deprived, which will affect long-term resale and rental appeal. Annual service charge is approximately £1,120 and the property is leasehold.
Offered at a modest guide price, the flat suits a first-time buyer seeking a low-entry purchase or an investor targeting straightforward lettings. Buyers should view to assess room proportions and street-level location against personal needs and risk tolerance.
1 bedroom flat for sale in Trafalgar Square, Scarborough, YO12 — £75,000 • 1 bed • 1 bath • 343 ft²
1 bedroom flat for sale in Royal Crescent Lane, Scarborough, YO11 — £90,000 • 1 bed • 1 bath • 347 ft²
1 bedroom apartment for sale in Friar's Way, Scarborough, YO11 — £69,950 • 1 bed • 1 bath • 513 ft²
1 bedroom flat for sale in Royal Avenue, Scarborough, North Yorkshire, YO11 — £65,000 • 1 bed • 1 bath • 412 ft²
1 bedroom apartment for sale in Granville Road, Scarborough, YO11 — £80,000 • 1 bed • 1 bath • 488 ft²
1 bedroom apartment for sale in Princess Royal Terrace, Scarborough, YO11 — £75,000 • 1 bed • 1 bath • 434 ft²










































