Compact, well-updated one-bed close to stations and High Street.
- Bay-fronted double bedroom with room for storage
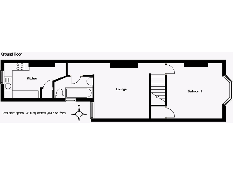
A well-presented one-bedroom first-floor maisonette in the heart of Guildford, ideal for a first-time buyer or buy-to-let investor. The bay-fronted bedroom, compact living room with workspace, and recently refitted kitchen and bathroom give the flat a fresh, move-in-ready feel. Positioned within easy walking distance of both mainline stations and the High Street, the location delivers convenience for commuting, shops and leisure.
The property is part of a red-brick period building and retains attractive external character while offering modern internal fittings. The 125-year lease (granted in 2006) and currently nil service charge and ground rent are practical benefits; shared maintenance is split 50/50 if works are required. Broadband and mobile signal are strong, and travel times to London are competitive for town-centre living.
Important practical points: the flat is leasehold, has no private garden or allocated parking (on-street parking only), and sits in a neighbourhood with higher recorded crime rates — factors to consider for family buyers. The building has solid brick walls (likely uninsulated) and double glazing of unknown age, so further insulation or energy upgrades may be desirable to reduce running costs. Overall, this compact apartment offers central convenience and strong rental or starter-home potential, provided buyers accept the urban setting and shared maintenance arrangements.
1 bedroom maisonette for sale in Clover Road, Guildford, Surrey, GU2 — £200,000 • 1 bed • 2 bath • 529 ft²
1 bedroom flat for sale in Tyrells Place, Guildford, Surrey, GU1 — £350,000 • 1 bed • 1 bath • 587 ft²
1 bedroom flat for sale in School Close, Guildford, GU1 — £200,000 • 1 bed • 1 bath • 620 ft²
1 bedroom flat for sale in London Road, Guildford, GU1 — £300,000 • 1 bed • 1 bath • 414 ft²
1 bedroom apartment for sale in Chaucer Court, Portsmouth Road, Guildford, Surrey, GU2 — £269,500 • 1 bed • 1 bath • 469 ft²
2 bedroom apartment for sale in Manor Lodge, Manor Road, Guildford, GU2 — £250,000 • 2 bed • 1 bath • 568 ft²






























