Central Holgate location ideal for first-time buyers and commuters.
Two double bedrooms with built-in storage and period features
Private west-facing courtyard, low-maintenance outdoor space
Chain free — immediate purchase possible
Double glazing fitted post-2002; mains gas boiler and radiators
EPC D — energy efficiency improvements recommended
Solid brick walls likely uninsulated; thermal upgrades possible
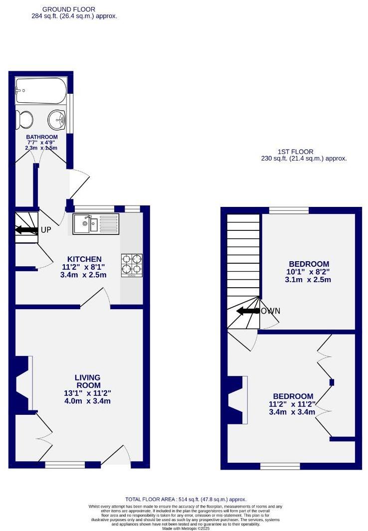
Small overall size (approx. 514 sq ft) and modest plot
Very low council tax (Band A) and excellent local transport links
A well-maintained Victorian mid-terrace in Holgate, close to York station and the city centre, this compact two-bedroom house suits first-time buyers or a buy-to-let purchase. Period features remain throughout — original cupboards, picture rails and a feature fireplace — offering warmth and character from the moment you step inside. The living room benefits from high ceilings and good natural light, while the fitted kitchen and bathroom provide practical, usable space.
The property is offered chain free and includes a private west-facing courtyard, low-maintenance outdoor space for afternoon sun. Practical strengths include double glazing (installed post-2002), mains gas boiler and radiators, and a very low council tax band. Its central location places shops, buses and local amenities within easy walking distance, making daily life straightforward for commuters and young families.
Buyers should note the EPC rating is D and the original solid brick walls are assumed to have no insulation. Improving thermal efficiency would reduce bills and increase comfort — insulation, boiler servicing or targeted upgrades could be sensible investments. The overall footprint is small (approx. 514 sq ft) so storage and outdoor space are limited compared with larger family homes.
Overall this home offers an affordable entry to York’s popular Holgate area with immediate occupation possible. It will particularly suit those seeking a characterful, manageable home with scope to improve energy performance and personalise internal finishes.
2 bedroom terraced house for sale in Lindley Street, York, YO24 — £375,000 • 2 bed • 1 bath • 1111 ft²
2 bedroom terraced house for sale in Salisbury Terrace, York, YO26 — £220,000 • 2 bed • 1 bath • 560 ft²
2 bedroom terraced house for sale in Diamond Street, York, North Yorkshire, YO31 8LH, YO31 — £210,000 • 2 bed • 1 bath • 566 ft²
2 bedroom town house for sale in St. Pauls Mews, York, YO24 — £240,000 • 2 bed • 1 bath • 684 ft²
2 bedroom terraced house for sale in Hanover Street West, York YO26 4YB, YO26 — £225,000 • 2 bed • 1 bath • 644 ft²
2 bedroom terraced house for sale in Yearsley Crescent, York, YO31 — £230,000 • 2 bed • 1 bath • 564 ft²


















































