Three double bedrooms with generous principal bedroom size
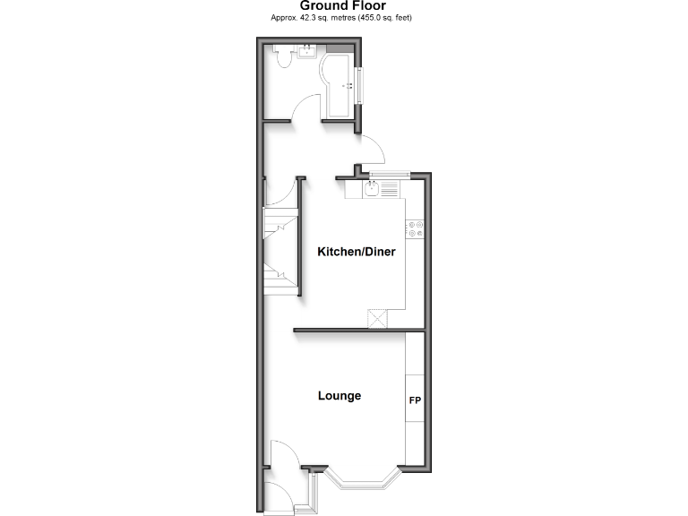
Bright, spacious three-bedroom terraced house in the heart of Snodland village, offered freehold and ready to move into. The property feels larger than its footprint, with generous reception rooms, a cellar for storage or potential conversion (subject to consents) and a sunny rear garden with gated rear access — a rare convenience for an urban terrace.
The kitchen/diner is modern and well presented, with integrated appliances and good natural light, making it the social hub for family life. Principal bedroom sizes are comfortable; room proportions and layout suit young families or buyers seeking flexible living space close to local amenities and schools.
Practical considerations: the property is a period mid-terrace (c.1900–1929) with solid brick walls and assumed lack of cavity insulation; buyers should budget for potential thermal improvements. The area scores as deprived with higher-than-average crime levels, and some local demographic challenges are noted. The cellar and any alterations will need verification for planning/building regulation compliance.
Overall this is a well-proportioned family home in a central location with strong travel links, fast broadband and an excellent mobile signal. It offers immediate comfort and obvious scope to improve energy efficiency and add value over time.
3 bedroom terraced house for sale in Queens Road, Snodland, Kent, ME6 — £290,000 • 3 bed • 1 bath • 754 ft²
3 bedroom terraced house for sale in Malling Road, Snodland, Kent, ME6 — £300,000 • 3 bed • 1 bath • 842 ft²
2 bedroom terraced house for sale in Malling Road, Snodland, Kent, ME6 — £280,000 • 2 bed • 1 bath • 765 ft²
3 bedroom terraced house for sale in Queens Road, Snodland, Kent, ME6 — £192,000 • 3 bed • 1 bath • 754 ft²
3 bedroom terraced house for sale in High Street, Snodland, ME6 — £300,000 • 3 bed • 1 bath • 1200 ft²
3 bedroom terraced house for sale in Holborough Road, Snodland, Kent, ME6 — £280,000 • 3 bed • 1 bath • 1045 ft²






























































