Ready-to-enjoy village location with scope to modernise and add value.
- Sunny rear garden with handy rear access
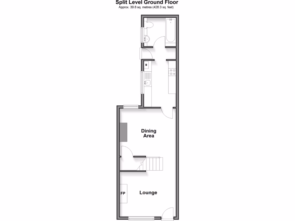
- Good-size rooms throughout, versatile living space
- Lovely kitchen, practical for everyday cooking
- Three bedrooms and separate dining area
- Single bathroom only, may need modernising
- Visible damp marks and dated finishes present
- Solid brick walls likely without cavity insulation
- Area classified as deprived with higher crime levels
This Victorian mid-terrace offers a compact, practical three-bedroom layout ideal for first-time buyers seeking space and character at an accessible price. Rooms feel larger than the overall footprint suggests, and the kitchen opens to a sunny rear garden with useful rear access — a rare find in the village.
The house is presented with tasteful touches in places and benefits from double glazing (post-2002) and mains gas central heating. Living space is versatile with separate lounge and dining areas, making it easy to adapt for family life, home working, or renting out spare rooms.
Buyers should note the property displays some signs of wear: dated finishes, visible damp marks in parts, and the original solid brick walls likely lack cavity insulation. These issues are repairable but will require investment. The area is classified as deprived with higher local crime levels, so factor neighbourhood considerations into any decision.
Located in the heart of Snodland village, the home is within easy walking distance of shops, eateries and the station. Local primary schools are rated Good. Offered as a freehold at £270,000 with affordable council tax, this property suits buyers wanting immediate occupancy with scope to modernise and add value.
2 bedroom terraced house for sale in Malling Road, Snodland, Kent, ME6 — £260,000 • 2 bed • 1 bath • 786 ft²
2 bedroom detached house for sale in Queens Avenue, Snodland, Kent, ME6 — £325,000 • 2 bed • 1 bath • 584 ft²
2 bedroom end of terrace house for sale in Queens Avenue, Snodland, ME6 — £350,000 • 2 bed • 2 bath • 1012 ft²
3 bedroom terraced house for sale in Holborough Road, Snodland, ME6 5PD, ME6 — £315,000 • 3 bed • 2 bath • 959 ft²
3 bedroom end of terrace house for sale in Malling Road, Snodland, Kent, ME6 — £250,000 • 3 bed • 1 bath • 787 ft²
3 bedroom terraced house for sale in Holborough Road, Snodland, Kent, ME6 — £280,000 • 3 bed • 1 bath • 1045 ft²


























































