A secluded estate offering major redevelopment and leisure potential.
Extensive private grounds including pool and tennis court
Existing planning consent; further works subject to planning (STPP)
Estate-scale plot (5 acres immediately; surrounded by further parkland)
Substantial circa 6,000 sqft residence shown in proposed plans
Secluded hamlet location with excellent mobile and fast broadband
High maintenance and running costs for large grounds and leisure facilities
Suitable for equestrian or ancillary buildings subject to planning
Local schools and services are mixed; verify access and servicing
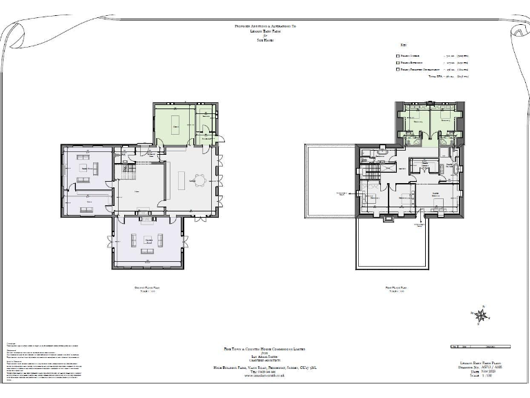
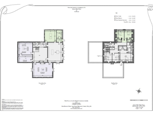
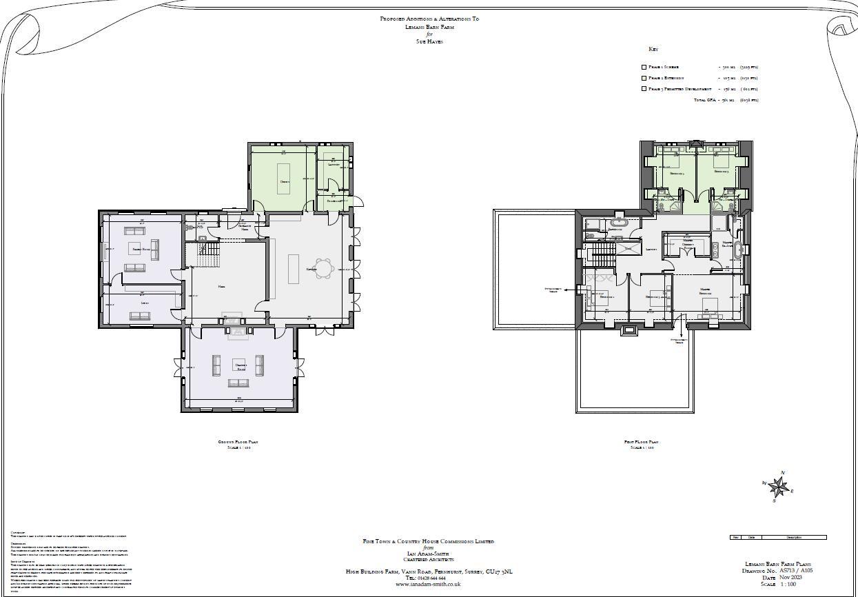
Set within an estate-scale plot in the Surrey Hills, this secluded five-bedroom country house sits amid mature woodland and open parkland. The property includes extensive grounds, a rectangular outdoor swimming pool, separate tennis court, sweeping drive and substantial parking/garage area — amenities that suit family leisure, equestrian use or a private country estate.
Planning consent exists and accompanying proposals show a striking c.6,000 sq ft residence, demonstrating clear scope for redevelopment or significant extension (subject to planning). The site is offered freehold with excellent mobile signal and fast broadband, making it practical for modern country living or a high-end refurbishment project.
This is a high-value, low-visibility location: long sightlines, heavy tree screening and no public footpaths crossing the immediate plot deliver rare privacy. That premium comes with typical estate responsibilities — substantial grounds maintenance, higher running costs and the need to confirm servicing, access and any further permissions for additional buildings or alterations.
For buyers seeking a private family retreat or a development/investment opportunity in a very affluent rural area, the plot’s size, existing consent and leisure facilities present considerable upside. Local schools are mixed in performance and the property sits in a sparsely settled hamlet; practicalities such as travel, schooling choices and ongoing upkeep should be fully considered.
6 bedroom detached house for sale in Mountfield, Coldharbour, Dorking, Surrey, RH5 — £2,000,000 • 6 bed • 4 bath • 3859 ft²
7 bedroom detached house for sale in Ranmore Common, Surrey, RH5 — £5,000,000 • 7 bed • 4 bath • 4920 ft²
5 bedroom detached house for sale in Somersbury Lane, Ewhurst, Cranleigh, Surrey, RH12 — £3,950,000 • 5 bed • 2 bath • 3426 ft²
Plot for sale in Longdown Road, Guildford, Surrey, GU4 — £2,350,000 • 6 bed • 1 bath • 4662 ft²
5 bedroom house for sale in Petworth Road, Wormley, Godalming, Surrey, GU8 — £1,500,000 • 5 bed • 3 bath • 2361 ft²
6 bedroom detached house for sale in August Lane, Albury, Guildford, Surrey, GU5 — £2,850,000 • 6 bed • 4 bath • 5987 ft²






























































