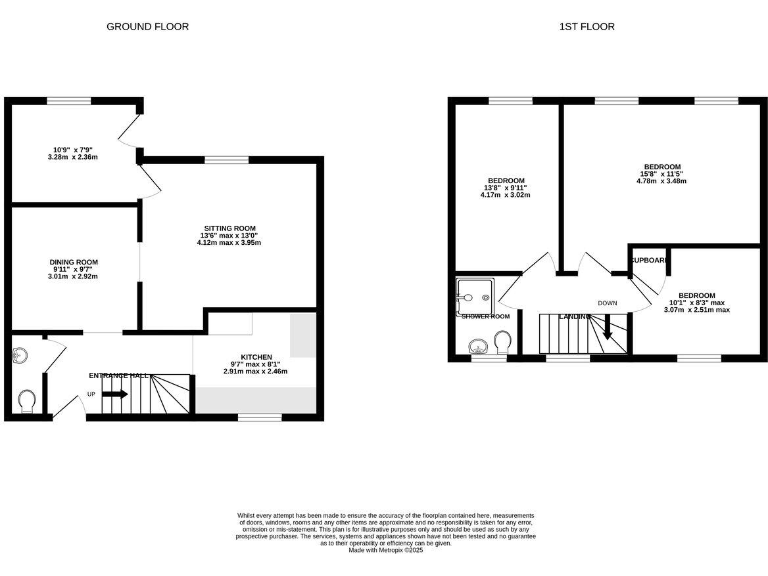
Three bedrooms over two storeys, good living-room proportions
A tucked-away mid-terrace in Coleford offering a practical three-bedroom layout and front and rear gardens. The house is offered freehold with no onward chain, making it a straightforward purchase for buyers willing to carry out improvement work. The sitting room is spacious and opens toward the garden, with an adjoining conservatory/utility that adds useful ground-floor space.
The property requires full modernisation throughout: cosmetic updating, kitchen and bathroom replacement and general refurbishment are needed. The home was built in the post‑war period and has older double glazing and a mains gas boiler with radiators — sensible to budget for retrofit or upgrades if energy efficiency is a priority.
Set in a small town fringe location with low crime, excellent mobile signal and basic local amenities nearby, the house suits a family, a buyer seeking a renovation project, or an investor looking to add value. The modest overall size and small plot mean this will appeal to those wanting manageable outdoor space rather than large gardens.
Viewings are recommended to appreciate the layout and potential; the property offers scope to reconfigure rooms or modernise finishes to create a comfortable family home in a quiet village setting.
3 bedroom semi-detached house for sale in Beacon View, Coleford, Radstock, BA3 — £210,000 • 3 bed • 1 bath • 834 ft²
3 bedroom semi-detached house for sale in Anchor Road, Coleford, Radstock, BA3 — £289,000 • 3 bed • 1 bath • 1115 ft²
4 bedroom detached house for sale in Springers Hill, Coleford, BA3 — £450,000 • 4 bed • 2 bath • 1241 ft²
3 bedroom end of terrace house for sale in High Street, Coleford, BA3 — £370,000 • 3 bed • 1 bath • 1141 ft²
2 bedroom terraced house for sale in Highbury Street, Coleford, BA3 — £200,000 • 2 bed • 1 bath • 598 ft²
3 bedroom terraced house for sale in Coleford, Radstock, Somerset, BA3 — £250,000 • 3 bed • 1 bath • 785 ft²






















































