Single-level coastal bungalow with garage, sea views and renovation potential.
Detached single-storey bungalow with panoramic coastal views
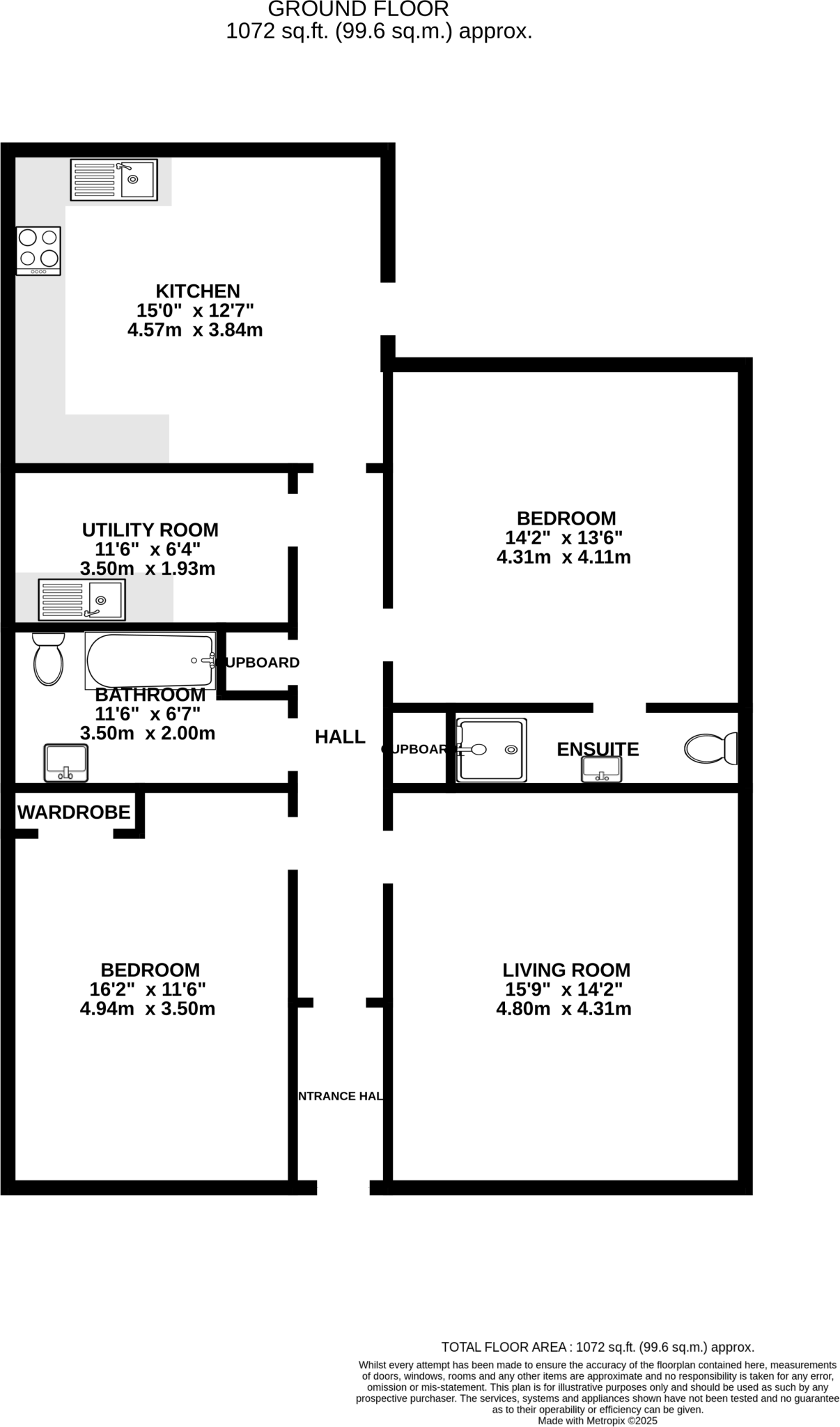
Set on Castle Street in picturesque Portmahomack, this single-storey detached bungalow offers comfortable level living with coastal views toward the Cromarty Firth. The property has two double bedrooms, an en suite and a family bathroom, a front lounge with a living-flame gas fire, kitchen with dining space and a utility room. A driveway leads to a single garage and there is a small front garden with a tiered rear lawn.
The house requires renovation and modernisation throughout: the kitchen is dated, and internal and external updates are needed to realise the home’s full potential. That condition creates an opportunity for a downsizer or holiday-owner to customise the layout and finishes to suit their needs. Government grants may be available to assist with insulation and window upgrades.
Practical benefits include off-street parking, garage with light and power, fast broadband and a modest footprint all on one level — ideal for anyone seeking single-storey living. The village location places daily amenities, a school, community hall and coastal recreation within easy reach, while Tain and Inverness are accessible for wider services and transport links.
Buyers should note this property sits in a very deprived area classification and has average mobile signal; the bungalow’s renovation requirement and small-to-medium garden will suit buyers prepared to invest time and budget. Viewing is recommended to appreciate the elevated outlook, garage and scope for improvement in this popular seaside village.
4 bedroom villa for sale in 13 Tarbatness Road, Portmahomack, IV20 1YA, IV20 — £340,000 • 4 bed • 2 bath • 2056 ft²
3 bedroom terraced bungalow for sale in 2 Main Street, Inver, Tain, IV20 — £130,000 • 3 bed • 1 bath • 564 ft²
2 bedroom end of terrace house for sale in 4 Shandwick Mains Cottages, Kildary, Invergordon, IV19 — £95,000 • 2 bed • 1 bath • 853 ft²
3 bedroom detached house for sale in 5 Rockfield, Rockfield Village, Portmahomack, IV20 — £295,000 • 3 bed • 3 bath • 2087 ft²
2 bedroom apartment for sale in Flat 5, Harbour Buildings Harbour Street, Portmahomack, IV20 1YG, IV20 — £110,000 • 2 bed • 1 bath • 603 ft²
3 bedroom detached bungalow for sale in Moray View, Balintore, Tain, IV20 — £300,000 • 3 bed • 1 bath










































































