Large family house with sunny terrace and double garage near local schools.
Four generously sized double bedrooms
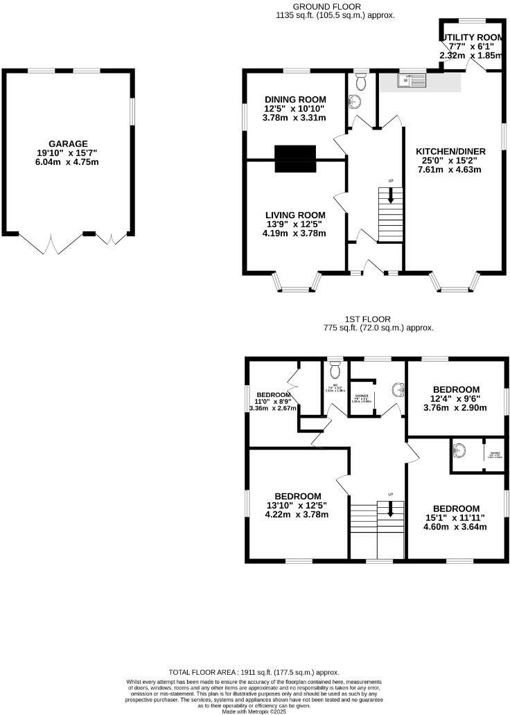
This substantial Edwardian detached house in Woodland Ravine offers family-sized accommodation across two storeys with four generously sized double bedrooms and two modern shower rooms. The home blends period character—high ceilings and large windows—with a contemporary open-plan kitchen diner that functions as the house’s social hub. A cosy, light-filled living room and a separate formal dining room give flexibility for everyday family life and entertaining.
Externally the large, private plot is a major draw: a south-facing terrace, tiered lawns, planted beds and mature treelines provide a peaceful outlook and secure outdoor space for children. Driveway parking for two cars and a double garage add practical storage and parking. Broadband and mobile signal are strong, and there is no flood risk.
Recent works have refreshed the downstairs living areas, but there are mixed signals about the overall condition: some descriptions indicate further updating may be needed upstairs and for energy performance (EPC icon noted). The house is solid brick (original build, assumed without cavity insulation) and runs on mains gas with boiler and radiators, so buyers should factor in potential insulation and energy-improvement costs.
Located in a quiet, well-connected area close to local amenities, schools and transport links, this property suits families wanting spacious rooms and generous gardens with scope to personalise or extend (subject to planning). Note the local area’s higher deprivation metrics and above-average council tax band—practical considerations for budgeting alongside purchase and any renovation plans.
4 bedroom detached house for sale in Mountside, Scarborough, YO11 — £700,000 • 4 bed • 2 bath • 4182 ft²
4 bedroom detached house for sale in Scalby Road, Scarborough, YO12 — £360,000 • 4 bed • 1 bath • 1561 ft²
3 bedroom detached house for sale in Weaponness Valley Road, Scarborough, YO11 2JG, YO11 — £320,000 • 3 bed • 2 bath • 1404 ft²
4 bedroom detached house for sale in Fenby Gardens, Scarborough, YO12 — £475,000 • 4 bed • 3 bath • 1719 ft²
3 bedroom semi-detached house for sale in Prospect Mount Road, Scarborough, YO12 — £197,500 • 3 bed • 1 bath • 1283 ft²
3 bedroom detached house for sale in Lady Ediths Park, Scarborough, YO12 — £325,000 • 3 bed • 2 bath • 1707 ft²


























































































































































