Bright one-bedroom with parking and easy Raynes Park access.
Private direct-access garden via French doors
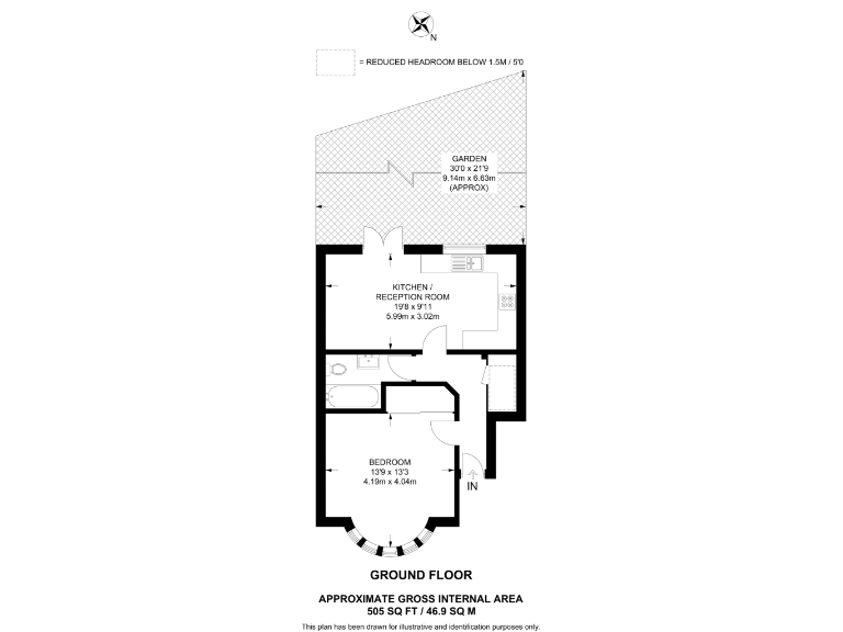
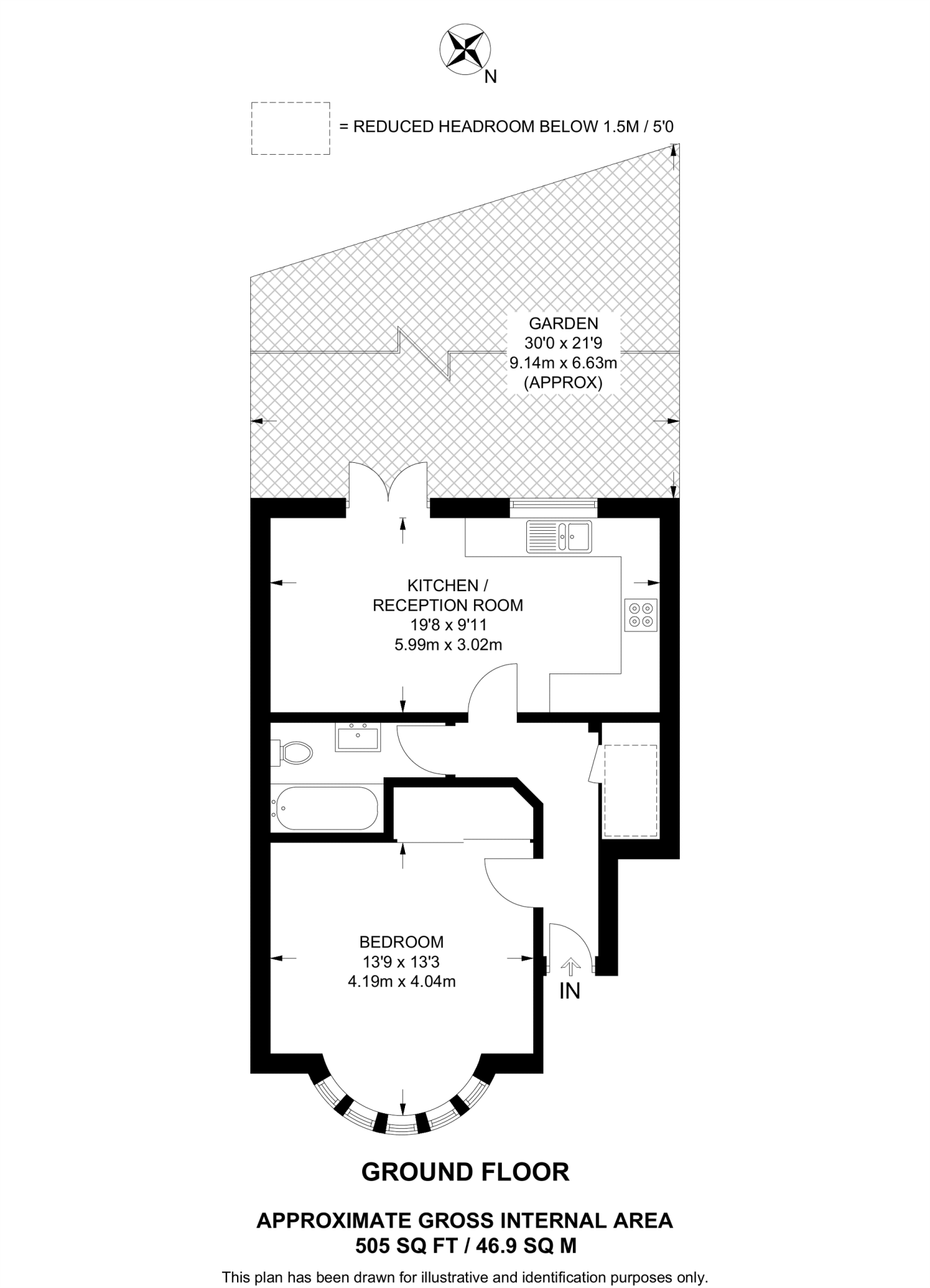
A well-presented ground-floor one-bedroom flat offering an open-plan kitchen/reception and direct private garden access — ideal for first-time buyers seeking outside space in SW20. The bay-front double bedroom includes a built-in wardrobe; the reception benefits from natural light and French doors leading to the garden. Off-street parking for one car adds a rare convenience in this neighbourhood.
Practical ownership is straightforward: share of freehold with approximately 108 years remaining on the lease and a below-average service charge of £720. The property sits in a solid-brick mid-1900s terrace with double glazing and gas central heating via boiler and radiators. Raynes Park and Sutton are easily reachable and the location is across from local tennis courts and close to several well-rated primary and secondary schools.
Be aware of a few material considerations: the building’s solid brick construction likely lacks cavity insulation, and the double glazing install date is unknown, so energy performance may be improved with upgrades. There is a medium flood risk for the area — potential buyers should check flood cover and mitigation measures. At about 505 sq ft, the flat is an average-sized one-bedroom, so storage and living space are compact compared with larger homes.
Overall, this flat suits a buyer who values private outside space, good local schools, and strong transport links into London, and is comfortable with modest ongoing improvement works to maximise comfort and efficiency.
1 bedroom flat for sale in Greenview Drive, London, SW20 — £315,000 • 1 bed • 1 bath • 511 ft²
1 bedroom flat for sale in Kimble Road, South Wimbledon, London, SW19 — £425,000 • 1 bed • 1 bath • 507 ft²
2 bedroom flat for sale in Henfield Road, Wimbledon, London, SW19 — £450,000 • 2 bed • 1 bath • 652 ft²
1 bedroom flat for sale in Blenheim Road, Raynes Park, SW20 — £450,000 • 1 bed • 1 bath • 614 ft²
1 bedroom flat for sale in Henfield Road, Wimbledon, London, SW19 — £350,000 • 1 bed • 1 bath • 532 ft²
1 bedroom apartment for sale in Durham Road, Wimbledon, London, SW20 — £480,000 • 1 bed • 1 bath • 646 ft²






















































