**Standout Features:**
- Charming 3-bedroom terraced house with traditional sandstone exterior
- Located in the picturesque village of Felton, Northumberland
- Spacious accommodation over three storeys with original period details
- Beautiful south-facing garden and separate courtyard with two outbuildings
- Close to amenities, including shops, cafés, and well-regarded primary schools
- Excellent transport links with nearby railway stations and road access to A1
**Summary:**
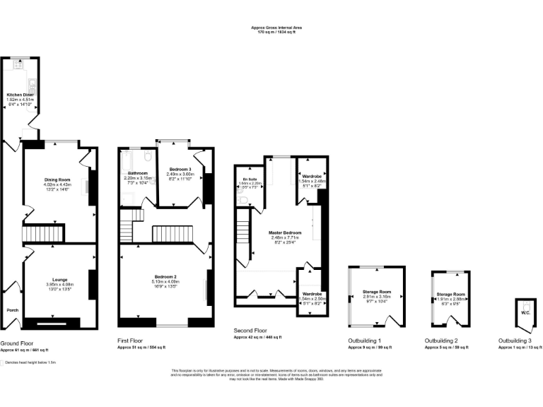
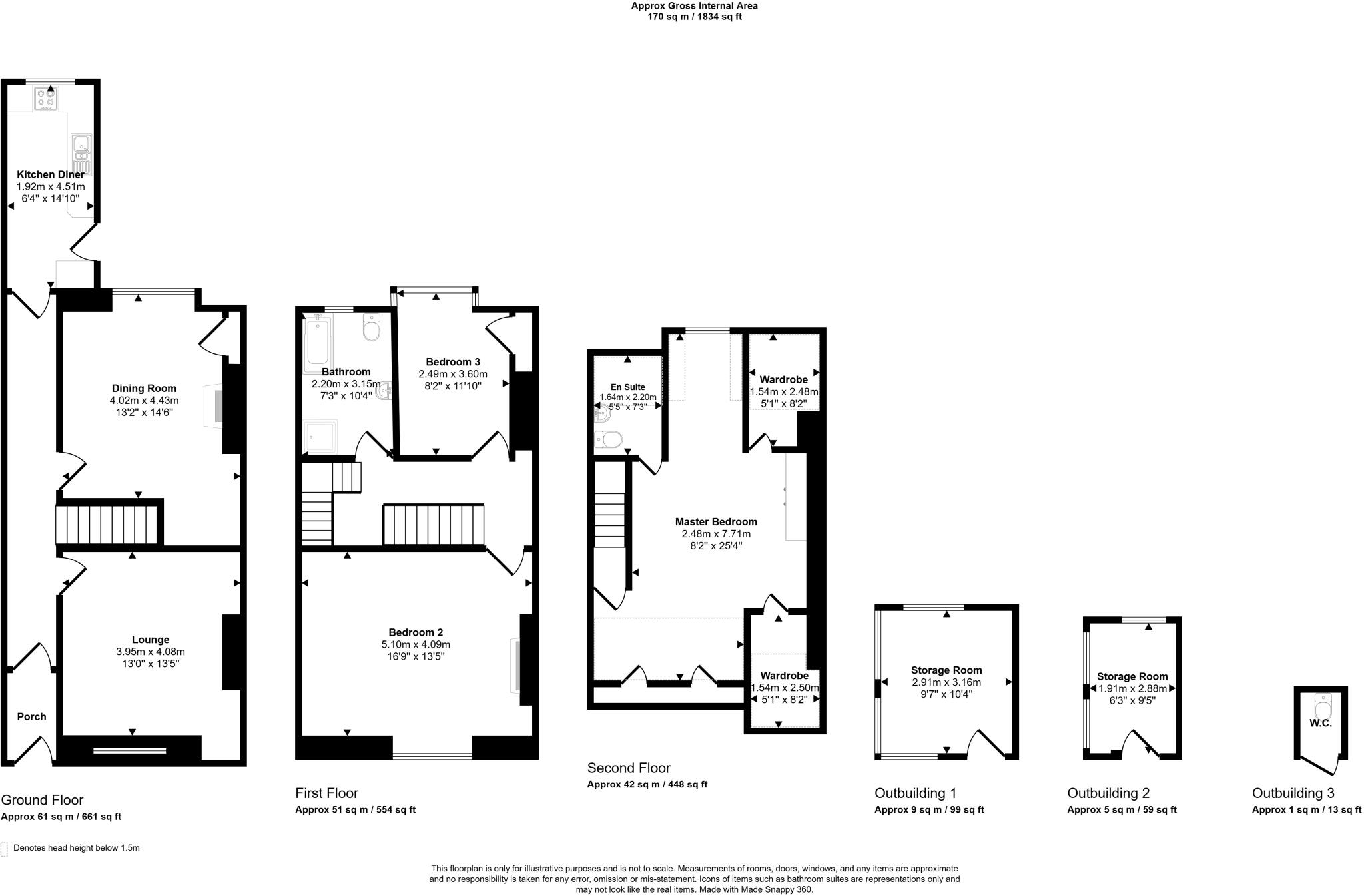
Discover this enchanting 3-bedroom terraced house on Main Street, nestled in the highly desirable village of Felton. Offering a generous 1,834 square feet of character-filled living space, this delightful property boasts two inviting reception rooms, a traditional kitchen, and a converted attic complete with a WC. With room for modernisation and personal touches, it presents a fantastic opportunity for families, retirees, or first-time buyers looking for a tranquil village lifestyle.
Step outside to enjoy your expansive, well-maintained south-facing garden, perfect for outdoor entertaining or simply unwinding in nature. The property is ideally situated close to all local amenities, including the beloved Running Fox Café and a community-oriented primary school with excellent Ofsted ratings. With a low crime rate and vibrant community spirit, Felton is a safe and welcoming place to call home. Don't miss out on this unique opportunity to embrace comfortable rural living. Act quickly, as properties in Felton are highly sought-after!
 3 bedroom terraced house for sale in Main Street, Felton, Morpeth, Northumberland, NE65 — £200,000 • 3 bed • 1 bath • 503 ft²
 3 bedroom terraced house for sale in Main Street, Felton, Morpeth, Northumberland, NE65 — £200,000 • 3 bed • 1 bath • 503 ft² 3 bedroom detached house for sale in Recreation Lane, Felton, Morpeth, Northumberland, NE65 — £375,000 • 3 bed • 1 bath • 1279 ft²
 3 bedroom detached house for sale in Recreation Lane, Felton, Morpeth, Northumberland, NE65 — £375,000 • 3 bed • 1 bath • 1279 ft² 5 bedroom detached house for sale in Main Street, Felton, Northumberland, NE65 — £525,000 • 5 bed • 3 bath • 2214 ft²
 5 bedroom detached house for sale in Main Street, Felton, Northumberland, NE65 — £525,000 • 5 bed • 3 bath • 2214 ft² 2 bedroom semi-detached house for sale in Benlaw Grove, Felton, NE65 — £225,000 • 2 bed • 1 bath • 1046 ft²
 2 bedroom semi-detached house for sale in Benlaw Grove, Felton, NE65 — £225,000 • 2 bed • 1 bath • 1046 ft² 3 bedroom terraced house for sale in Burgham Park, Felton, Morpeth, Northumberland, NE65 9QP, NE65 — £325,000 • 3 bed • 3 bath
 3 bedroom terraced house for sale in Burgham Park, Felton, Morpeth, Northumberland, NE65 9QP, NE65 — £325,000 • 3 bed • 3 bath 4 bedroom detached bungalow for sale in Lane End Cottage, Recreation Lane, Felton, Morpeth, Northumberland, NE65 — £525,000 • 4 bed • 2 bath • 1141 ft²
 4 bedroom detached bungalow for sale in Lane End Cottage, Recreation Lane, Felton, Morpeth, Northumberland, NE65 — £525,000 • 4 bed • 2 bath • 1141 ft²














































































































